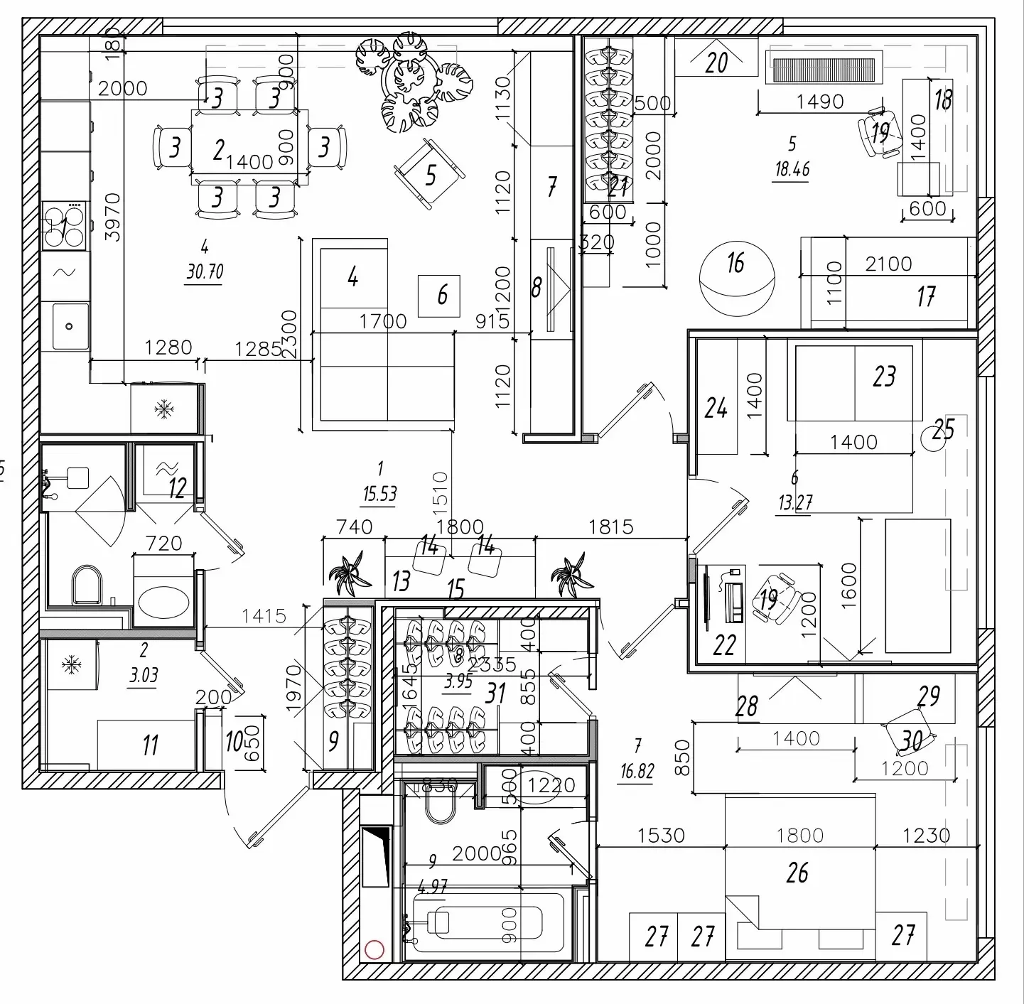
The apartment, with a total area of 101 square meters, is designed in a modern style with the use of natural warm textures of wood, stone, decorative sand plaster, and contrasting walls in a deep green shade, which give a velvety appearance against the overall background. We made minimal changes to the layout, only connecting the kitchen-living room with the corridor. This principle is commonly used in the planning of premium and business segment apartments, creating flowing spaces that appear even more spacious. The absence of crampedness creates a sense of elitism and comfort when living with a family. The apartment includes a kitchen-living room, a children's room, a study, a bedroom, two bathrooms (a bathtub and a guest toilet), and two wardrobes (one for the parents' bedroom and one at the entrance to the apartment).
One of the goals of creating this interior is to provide coziness and comfort in the space. It is an interior that stands out from the ordinary with its elegance, luxury, and uniqueness. This was achieved through:
A premium interior should be made of high-quality materials. This can include expensive furniture, designer fabrics and accessories, exquisite textile wallpapers, and carpets made of natural materials. The wall and floor finishes should also be done with quality materials such as marble, granite, wood, or glass.
We do not replicate our designs or collect favorite techniques in our collection. This is a unique design project created in 3D graphics using unconventional forms, non-standard color solutions, and designer elements.
We have paid attention to every detail. We have carefully designed door handles, window sill finishes, and decorative elements on the walls and furniture to create a complete and finished look.
Lighting is an important aspect of every premium interior we create. It always aligns with the design concept. There is general technical lighting, accent lighting in the form of a chandelier above the table, pendant lights above bedside tables, or wall sconces.
This interior features designer chairs, tables, sofas, and beds, along with custom-made built-in furniture in the bedroom from Italian manufacturers Oliverimobili, Alberta Salotti, Twils, Assento. The rest of the furniture is custom-made according to our sketches.
To learn more about luxury in detail or how to distinguish ordinary renovations from premium ones, you can read this ARTICLE.
Please fill out this FORM to reach out to the professional designers at KPD.design.
Architect: Ekaterina Proskurina
3D: Roman Staroverov


















