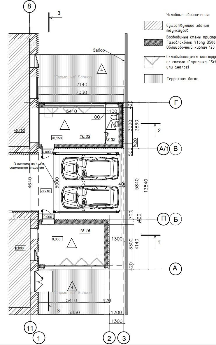
The project involved the construction of two additional living room extensions for two townhouses, which were separated by a driveway. Additionally, the project included the creation of a mechanized underground platform-parking for two parking spaces.
The extensions were designed in two variations: with a canopy in the form of a marquee or a pergola. They were located on the courtyard side and served as protection for the barbecue area from the sun or rain. The roofs of the extensions were designed with usable flat roofs, allowing for the possibility of planting small shrubs and flowers.
The project not only included functional living room extensions but also a convenient underground parking and the protection and improvement of the space around the townhouses.
This is a special solution for narrow built-up areas where, in order to create convenience, it is necessary to go underground because there is no available space at ground level near the house.