В современном жилье студия - это однокомнатная квартира, которая объединяет в себе жилую зону, кухню и обеденную зону в едином пространстве без явного разделения на отдельные комнаты. Обычно такие квартиры имеют площадь до 50 квадратных метров. Самая маленькая студия в наши дни имеет площадь 9 квадратных метров. По нашему мнению жить в таком жилище на постоянной основе - это копить психоэмоциональные проблемы. Но спроектировать такое жилище для архитектора очень ценно!
Я - Екатерина Проскурина - архитектор, который занимается дизайном - помогаю организовать интерьер гостевой комнаты до ремонта: точно, удобно, с учётом разного состава проживающих (их пола и возраста). Мои услуги — это рабочая альтернатива дизайн-проекту за 7-10 дней по цене от 24990 рублей за услугу целиком. Подробное описание в услугах на сайте.
Подписаться на ТГ канал, где я подробно рассказываю, как сделать удобно.
Название "студия" для таких квартир происходит из мира искусства. В 1920-х годах в Париже молодые художники, писатели и музыканты начали снимать квартиры в старых артистических студиях, которые были большими, светлыми и просторными. Они использовали эти студии не только для работы, но и для жизни и встреч с друзьями. Таким образом, появилось понятие "студии" как места, где можно жить, работать и развлекаться в одном пространстве. Это понятие затем перенеслось на жилье и с тех пор студии стали популярными во многих городах мира.
Конкурс на типовую отделку квартир, предложенных к продаже, был запущен ГК "Самолет" в 2022 году. Наш дизайн-проект студии, созданный для участия в конкурсе, был ориентирован на современный минималистичный стиль, который включал использование приятных для глаз нейтральных цветов, таких как жемчужно серый, серый и бежевый, а также добавление текстур дерева и контрастного антрацитового темно-серого цвета в интерьер.
Конкурсная заявка состояла из:
В дизайн-проекте, который мы представили для открытого конкурса ГК "Самолет" на отделку квартиры студии, мы использовали эффектный дизайнерский прием в виде антрацитово-серых порталов, которые акцентируют внимание на стенах с окнами. Этот прием прост в исполнении и придает интерьеру визуальную привлекательность. Кроме того, мы также добавили подсветку на потолке у порталов, чтобы создать еще больший эффект.
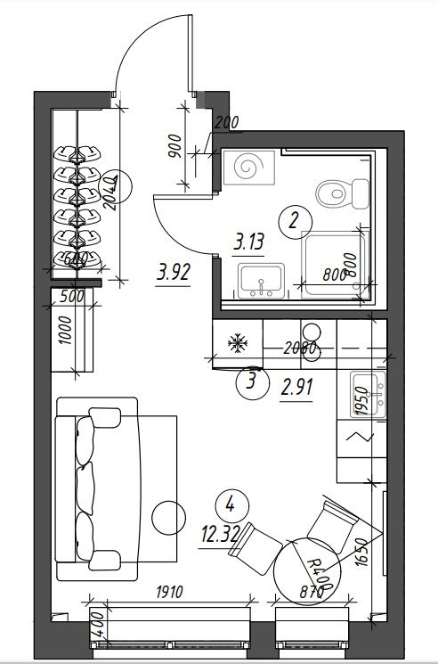
Отделка стен полосами контрастного антрацитового серого цвета и использование массива дерева для отделки оконных проемов также усиливают визуальный эффект. В нашем дизайн-проекте студии ЖК "Самолет" мы использовали популярные полу панорамные окна, которые позволяют сидеть на подоконниках и наслаждаться панорамным видом на город.
Отдельно стоящий стол придвинут к одному из окон, на подоконнике которого можно сидеть, что сделано намерено, чтобы увеличить количество посадочных мест, не прибавляя лишних элементов мебели, так как габариты студии не позволяют расположить более, чем два кресла. За столом удобно принимать гостей или работать, что особенно актуально в условиях гибридного графика работы для многих.
Диван раскладывается, образуя удобное двуспальное место. Рядом с диваном находится комод - хранение белья. Над комодом запроектированы полки. Как правило горизонтальных поверхностей в жилищах всегда не хватает (как и розеток), чтобы создать красивую интерьерную композицию, поставить вазу или фото рамки.
Для туалета Студии разработана раскладка плитки треугольниками (это плитка 60х60 см, порезанная по диагонали), которая поддерживает геометрический рисунок на обоях. Стену с зашивкой труб инсталляции унитаза и стену с душевым уголком мы оформили плиткой с имитацией дерева. Эко тему с применением дерева поддерживает фартук в кухнях-нишах.
Все сметы и ведомости посчитаны на основе продуктов отечественных компаний, которые могут быть найдены на рынке сейчас без долгого ожидания их поставки: сантехника от Rosinka и Акванет, бренда Сантехники онлайн, электротехнические изделия Werkel, освещение Maytoni, обои Палитра, краска Ярославские краски и тп.
Если Вы хотите также, Вы можете купить у нас этот готовый дизайн-проект интерьера студии в составе: 3д визуализации, комплект чертежей для производства строительства, ведомость материалов с ссылками на производителя (где их купить), ведомость мебели с ссылками на производителя (где их купить). Для покупки заполните обратную ФОРМУ СВЯЗИ, написав "хочу дизайн-проект студии как в ЖК Самолет". Стоимость дизайн-проекта - 25 000 рублей.
Если Вам понравились дизайнерские решения дизайн-проекта студии в ЖК Самолет, мы можем их адаптировать и создать дизайн-проект для вашей квартиры. Просто заполните обратную ФОРМУ СВЯЗИ.
Архитектор: Проскурина Екатерина
Дизайнер: Староверов Роман
















