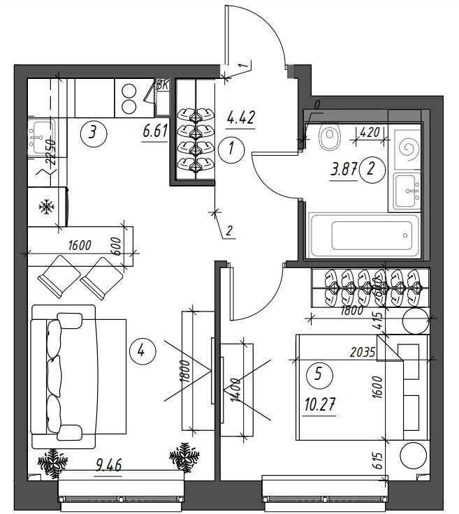
ΡΡΠΎ ΡΠΎΠ²ΡΠ΅ΠΌΠ΅Π½Π½ΡΠΉ ΡΠΈΠΏ ΠΎΠ΄Π½ΠΎΠΊΠΎΠΌΠ½Π°ΡΠ½ΠΎΠΉ ΠΊΠ²Π°ΡΡΠΈΡΡ, ΠΊΠΎΡΠΎΡΡΠΉ ΠΈΠΌΠ΅Π΅Ρ ΠΎΡΠΎΠ±Π΅Π½Π½ΠΎΡΡΠΈ Π² ΠΏΠ»Π°Π½ΠΈΡΠΎΠ²ΠΊΠ΅ ΠΈ ΡΡΠ½ΠΊΡΠΈΠΎΠ½Π°Π»ΡΠ½ΠΎΡΡΠΈ. ΠΡΠ»ΠΈΡΠΈΠ΅ ΠΎΡ ΠΎΠ΄Π½ΠΎΠΊΠΎΠΌΠ½Π°ΡΠ½ΠΎΠΉ ΠΊΠ²Π°ΡΡΠΈΡΡ Π·Π°ΠΊΠ»ΡΡΠ°Π΅ΡΡΡ Π² Π½Π°Π»ΠΈΡΠΈΠΈ Π΄Π²ΡΡ ΠΎΡΠ΄Π΅Π»ΡΠ½ΡΡ ΠΊΠΎΠΌΠ½Π°Ρ: ΠΆΠΈΠ»ΠΎΠΉ ΠΈ ΡΠΏΠ°Π»ΡΠ½ΠΎΠΉ. ΠΠΈΠ»Π°Ρ ΠΊΠΎΠΌΠ½Π°ΡΠ° ΠΈΠΌΠ΅Π΅Ρ Π½Π°Π·Π²Π°Π½ΠΈΠ΅ ΠΊΡΡ Π½Ρ-Π³ΠΎΡΡΠΈΠ½Π°Ρ ΠΈ ΡΠΎΠ²ΠΌΠ΅ΡΠ°Π΅Ρ Π² ΡΠ΅Π±Π΅ Π·ΠΎΠ½Ρ ΠΏΡΠΈΠ³ΠΎΡΠΎΠ²Π»Π΅Π½ΠΈΡ ΠΈ ΠΏΡΠΈΠ΅ΠΌΠ° ΠΏΠΈΡΠΈ ΠΈ Π·ΠΎΠ½Ρ ΠΎΡΠ΄ΡΡ Π°. ΠΡΠ»ΠΈΡΠΈΠ΅ Π΅Π²ΡΠΎΠ΄Π²ΡΡΠΊΠΈ ΠΎΡ Π΄Π²ΡΡ ΠΊΠΎΠΌΠ½Π°ΡΠ½ΠΎΠΉ ΠΊΠ²Π°ΡΡΠΈΡΡ Π·Π°ΠΊΠ»ΡΡΠ°Π΅ΡΡΡ Π² ΡΠΎΠΌ, ΡΡΠΎ Π΅Π²ΡΠΎΠ΄Π²ΡΡΠΊΠ° Π½Π΅ ΠΈΠΌΠ΅Π΅Ρ ΠΎΡΠ΄Π΅Π»ΡΠ½ΠΎΠΉ ΠΊΡΡ Π½ΠΈ, Π° ΠΈΠΌΠ΅Π΅Ρ ΡΠΎΠ²ΠΌΠ΅ΡΠ΅Π½Π½ΡΡ ΠΊΡΡ Π½Ρ-Π³ΠΎΡΡΠΈΠ½ΡΡ.
Π― - ΠΠΊΠ°ΡΠ΅ΡΠΈΠ½Π° ΠΡΠΎΡΠΊΡΡΠΈΠ½Π° - Π°ΡΡ ΠΈΡΠ΅ΠΊΡΠΎΡ, ΠΊΠΎΡΠΎΡΡΠΉ Π·Π°Π½ΠΈΠΌΠ°Π΅ΡΡΡ Π΄ΠΈΠ·Π°ΠΉΠ½ΠΎΠΌ - ΠΏΠΎΠΌΠΎΠ³Π°Ρ ΠΎΡΠ³Π°Π½ΠΈΠ·ΠΎΠ²Π°ΡΡ ΠΈΠ½ΡΠ΅ΡΡΠ΅Ρ Π³ΠΎΡΡΠ΅Π²ΠΎΠΉ ΠΊΠΎΠΌΠ½Π°ΡΡ Π΄ΠΎ ΡΠ΅ΠΌΠΎΠ½ΡΠ°: ΡΠΎΡΠ½ΠΎ, ΡΠ΄ΠΎΠ±Π½ΠΎ, Ρ ΡΡΡΡΠΎΠΌ ΡΠ°Π·Π½ΠΎΠ³ΠΎ ΡΠΎΡΡΠ°Π²Π° ΠΏΡΠΎΠΆΠΈΠ²Π°ΡΡΠΈΡ (ΠΈΡ ΠΏΠΎΠ»Π° ΠΈ Π²ΠΎΠ·ΡΠ°ΡΡΠ°). ΠΠΎΠΈ ΡΡΠ»ΡΠ³ΠΈ β ΡΡΠΎ ΡΠ°Π±ΠΎΡΠ°Ρ Π°Π»ΡΡΠ΅ΡΠ½Π°ΡΠΈΠ²Π° Π΄ΠΈΠ·Π°ΠΉΠ½-ΠΏΡΠΎΠ΅ΠΊΡΡ Π·Π° 7-10 Π΄Π½Π΅ΠΉ ΠΏΠΎ ΡΠ΅Π½Π΅ ΠΎΡ 24990 ΡΡΠ±Π»Π΅ΠΉ Π·Π° ΡΡΠ»ΡΠ³Ρ ΡΠ΅Π»ΠΈΠΊΠΎΠΌ. ΠΠΎΠ΄ΡΠΎΠ±Π½ΠΎΠ΅ ΠΎΠΏΠΈΡΠ°Π½ΠΈΠ΅ Π² ΡΡΠ»ΡΠ³Π°Ρ Π½Π° ΡΠ°ΠΉΡΠ΅.
ΠΠΎΠ΄ΠΏΠΈΡΠ°ΡΡΡΡ Π½Π° Π’Π ΠΊΠ°Π½Π°Π», Π³Π΄Π΅ Ρ ΠΏΠΎΠ΄ΡΠΎΠ±Π½ΠΎ ΡΠ°ΡΡΠΊΠ°Π·ΡΠ²Π°Ρ, ΠΊΠ°ΠΊ ΡΠ΄Π΅Π»Π°ΡΡ ΡΠ΄ΠΎΠ±Π½ΠΎ.
Π’Π΅ΡΠΌΠΈΠ½ "Π΅Π²ΡΠΎΠ΄Π²ΡΡΠΊΠ°" ΠΏΠΎΡΠ²ΠΈΠ»ΡΡ Π² Π‘Π‘Π‘Π Π² 60-70 Π³ΠΎΠ΄Π°Ρ XX Π²Π΅ΠΊΠ°. ΠΠ°Π·Π²Π°Π½ΠΈΠ΅ ΠΏΡΠΎΠΈΡΡ ΠΎΠ΄ΠΈΡ ΠΎΡ ΡΠ»ΠΎΠ²ΠΎΡΠΎΡΠ΅ΡΠ°Π½ΠΈΡ "Π΅Π²ΡΠΎΠΏΠ΅ΠΉΡΠΊΠΈΠΉ ΡΡΠ°Π½Π΄Π°ΡΡ Π΄Π²ΡΡ ΠΊΠΎΠΌΠ½Π°Ρ", ΡΡΠΎ Π² ΠΏΠ΅ΡΠ΅Π²ΠΎΠ΄Π΅ ΡΠΎΠ²ΠΏΠ°Π΄Π°Π΅Ρ Ρ Π°Π½Π³Π»ΠΈΠΉΡΠΊΠΈΠΌ ΡΠ΅ΡΠΌΠΈΠ½ΠΎΠΌ "two-room apartment", ΠΊΠΎΡΠΎΡΡΠΉ ΠΈΡΠΏΠΎΠ»ΡΠ·ΡΠ΅ΡΡΡ Π΄Π»Ρ ΠΎΠ±ΠΎΠ·Π½Π°ΡΠ΅Π½ΠΈΡ ΠΊΠ²Π°ΡΡΠΈΡ Ρ Π΄Π²ΡΠΌΡ ΠΊΠΎΠΌΠ½Π°ΡΠ°ΠΌΠΈ. Π‘Π΅Π³ΠΎΠ΄Π½Ρ ΠΆΠ΅ ΡΠ΅ΡΠΌΠΈΠ½ "Π΅Π²ΡΠΎΠ΄Π²ΡΡΠΊΠ°" ΡΠΈΡΠΎΠΊΠΎ ΠΈΡΠΏΠΎΠ»ΡΠ·ΡΠ΅ΡΡΡ Π² ΡΡΡΠΎΠΈΡΠ΅Π»ΡΠ½ΠΎΠΉ ΠΎΡΡΠ°ΡΠ»ΠΈ ΠΈ Π² ΡΠ΅ΠΊΠ»Π°ΠΌΠ΅ Π½Π΅Π΄Π²ΠΈΠΆΠΈΠΌΠΎΡΡΠΈ Π΄Π»Ρ ΠΎΠ±ΠΎΠ·Π½Π°ΡΠ΅Π½ΠΈΡ Π΄Π²ΡΡ ΠΊΠΎΠΌΠ½Π°ΡΠ½ΡΡ ΠΊΠ²Π°ΡΡΠΈΡ Ρ ΡΠΎΠ²ΡΠ΅ΠΌΠ΅Π½Π½ΡΠΌ ΡΠΎΠ²ΠΌΠ΅ΡΠ΅Π½ΠΈΠ΅ΠΌ ΠΊΡΡ Π½ΠΈ Ρ Π³ΠΎΡΡΠΈΠ½ΠΎΠΉ, ΡΠΎ Π΅ΡΡΡ ΡΡΠΎ ΡΠ°ΠΊΡΠΈΡΠ΅ΡΠΊΠΈ ΠΎΠ΄Π½ΠΎΠΊΠΎΠΌΠ½Π°ΡΠ½Π°Ρ, Π³Π΄Π΅ Π½Π° ΠΊΡΡ Π½Π΅ ΡΠ°Π·ΠΌΠ΅ΡΡΠΈΠ»Π°ΡΡ Π·ΠΎΠ½Π° ΠΎΡΠ΄ΡΡ Π° Ρ Π΄ΠΈΠ²Π°Π½ΠΎΠΌ - Π³ΠΎΡΡΠΈΠ½Π°Ρ.
ΠΠ»Π°Π½ΠΈΡΠΎΠ²ΠΊΠ° Π΅Π²ΡΠΎΠ΄Π²ΡΡΠΊΠΈ ΠΎΠ±ΡΡΠ½ΠΎ ΠΏΡΠ΅Π΄ΡΡΠΌΠ°ΡΡΠΈΠ²Π°Π΅Ρ ΠΏΡΠΎΡΡΠΎΡΠ½ΡΡ ΠΊΡΡ Π½Ρ-Π³ΠΎΡΡΠΈΠ½ΡΡ, ΠΎΡΠ΄Π΅Π»ΡΠ½ΡΡ ΡΠΏΠ°Π»ΡΠ½Ρ ΠΈ ΡΠΎΠ²ΠΌΠ΅ΡΠ΅Π½Π½ΡΠΉ ΡΠ°Π½ΡΠ·Π΅Π». ΠΠ°ΠΊ ΠΏΡΠ°Π²ΠΈΠ»ΠΎ, ΡΠ°ΠΊΠ°Ρ ΠΊΠ²Π°ΡΡΠΈΡΠ° ΠΈΠΌΠ΅Π΅Ρ ΠΏΠ»ΠΎΡΠ°Π΄Ρ ΠΎΡ 35 Π΄ΠΎ 50 ΠΊΠ²Π°Π΄ΡΠ°ΡΠ½ΡΡ ΠΌΠ΅ΡΡΠΎΠ². ΠΡΠ½ΠΎΠ²Π½Π°Ρ ΠΈΠ΄Π΅Ρ ΠΏΠ»Π°Π½ΠΈΡΠΎΠ²ΠΊΠΈ Π΅Π²ΡΠΎΠ΄Π²ΡΡΠΊΠΈ - ΠΎΠ±Π΅ΡΠΏΠ΅ΡΠΈΡΡ ΠΌΠ°ΠΊΡΠΈΠΌΠ°Π»ΡΠ½ΡΡ ΡΡΠ½ΠΊΡΠΈΠΎΠ½Π°Π»ΡΠ½ΠΎΡΡΡ ΠΈ ΡΠ΄ΠΎΠ±ΡΡΠ²ΠΎ ΠΏΡΠΎΠΆΠΈΠ²Π°Π½ΠΈΡ Π½Π° Π½Π΅Π±ΠΎΠ»ΡΡΠΎΠΉ ΠΏΠ»ΠΎΡΠ°Π΄ΠΈ.
ΠΠ°Π½Π½ΡΠΉ ΠΏΡΠΎΠ΅ΠΊΡ Π±ΡΠ» ΠΊΠΎΠ½ΠΊΡΡΡΠ½ΡΠΌ. ΠΠ "Π‘Π°ΠΌΠΎΠ»Π΅Ρ" Π² 2022 Π³ΠΎΠ΄Ρ Π·Π°ΠΏΡΡΡΠΈΠ»Π° ΠΎΡΠΊΡΡΡΡΠΉ ΠΊΠΎΠ½ΠΊΡΡΡ Π½Π° ΡΠΈΠΏΠΎΠ²ΡΡ ΠΎΡΠ΄Π΅Π»ΠΊΡ ΠΏΡΠ΅Π΄Π»Π°Π³Π°Π΅ΠΌΡΡ ΠΊ ΠΏΠΎΠΊΡΠΏΠΊΠ΅ ΠΊΠ²Π°ΡΡΠΈΡ (ΡΡΡΠ΄ΠΈΠΉ ΠΈ Π΅Π²ΡΠΎΠ΄Π²ΡΡΠ΅ΠΊ). ΠΡ ΠΏΠΎΠ΄Π³ΠΎΡΠΎΠ²ΠΈΠ»ΠΈ ΠΊ ΠΊΠΎΠ½ΠΊΡΡΡΡ ΠΏΡΠΎΠ΅ΠΊΡ Π² ΡΠΎΠ²ΡΠ΅ΠΌΠ΅Π½Π½ΠΎΠΌ ΡΡΠΈΠ»Π΅ ΠΌΠΈΠ½ΠΈΠΌΠ°Π»ΠΈΠ·ΠΌ, Ρ ΠΏΡΠΈΠΌΠ΅Π½Π΅Π½ΠΈΠ΅ΠΌ Π½Π΅ΠΉΡΡΠ°Π»ΡΠ½ΡΡ Π½Π΅ Π²ΡΡ ΠΎΠ΄ΡΡΠΈΡ ΠΈΠ· ΠΌΠΎΠ΄Ρ ΡΡΠ΅Π½Π΄ΠΎΠ²ΡΡ ΡΠ²Π΅ΡΠΎΠ², ΡΠ°ΠΊΠΈΡ ΠΊΠ°ΠΊ ΡΠ΅ΡΠΎ-Π±Π΅ΠΆΠ΅Π²ΡΠΉ, ΡΠ΅ΡΡΠΉ, Π±Π΅ΠΆΠ΅Π²ΡΠΉ, Π° ΡΠ°ΠΊΠΆΠ΅ Ρ Π΄ΠΎΠ±Π°Π²Π»Π΅Π½ΠΈΠ΅ΠΌ Π² ΠΈΠ½ΡΠ΅ΡΡΠ΅Ρ ΡΠ΅ΠΊΡΡΡΡ Π΄Π΅ΡΠ΅Π²Π° ΠΈ ΠΊΠΎΠ½ΡΡΠ°ΡΡΠ½ΠΎΠ³ΠΎ Π°Π½ΡΡΠ°ΡΠΈΡΠΎΠ²ΠΎΠ³ΠΎ ΡΠ΅ΠΌΠ½ΠΎ ΡΠ΅ΡΠΎΠ³ΠΎ ΡΠ²Π΅ΡΠ°.
ΠΠΎΠ½ΠΊΡΡΡΠ½Π°Ρ Π·Π°ΡΠ²ΠΊΠ° ΡΠΎΡΡΠΎΡΠ»Π° ΠΈΠ·:
Π Π΄ΠΈΠ·Π°ΠΉΠ½Π΅ΡΡΠΊΠΈΡ ΡΠ΅ΡΠ΅Π½ΠΈΡΡ Π°Π½ΡΡΠ°ΡΠΈΡΠΎΠ²ΠΎ ΡΠ΅ΡΡΠ΅ ΠΏΠΎΡΡΠ°Π»Ρ Π°ΠΊΡΠ΅Π½ΡΠΈΡΡΡΡ Π²Π½ΠΈΠΌΠ°Π½ΠΈΠ΅ ΠΠΎΠΊΡΠΏΠ°ΡΠ΅Π»Ρ Π½Π° ΡΡΠ΅Π½Π°Ρ Ρ ΠΎΠΊΠ½Π°ΠΌΠΈ ΠΈ ΡΠ²Π»ΡΡΡΡΡ ΡΡΡΠ΅ΠΊΡΠ½ΡΠΌ Π΄ΠΈΠ·Π°ΠΉΠ½Π΅ΡΡΠΊΠΈΠΌ Π²ΠΈΠ·ΡΠ°Π»ΡΠ½ΠΎ-ΡΡΡΠ΅ΡΠΈΡΠ΅ΡΠΊΠΈΠΌ ΠΏΡΠΈΠ΅ΠΌΠΎΠΌ, Π½Π΅ΡΠ»ΠΎΠΆΠ½ΡΠΌ Π² ΠΈΡΠΏΠΎΠ»Π½Π΅Π½ΠΈΠΈ ΠΏΡΠΈ ΠΏΡΠΎΠΈΠ·Π²ΠΎΠ΄ΡΡΠ²Π΅ ΡΠ°Π±ΠΎΡ. ΠΠ° ΠΏΠΎΡΠΎΠ»ΠΊΠ΅ Ρ Π΄Π°Π½Π½ΡΡ "ΠΏΠΎΡΡΠ°Π»ΠΎΠ²" Π·Π°Π»ΠΎΠΆΠ΅Π½Π° ΠΏΠΎΠ΄ΡΠ²Π΅ΡΠΊΠ°, ΡΠΎΠΆΠ΅ Π²ΠΈΠ·ΡΠ°Π»ΡΠ½ΡΠΉ ΠΏΡΠΈΠ΅ΠΌ, ΠΊΠΎΡΠΎΡΡΠΉ ΡΠ°ΠΊΠΆΠ΅ Π΄ΠΎΠ»ΠΆΠ΅Π½ ΠΏΠΎΠ½ΡΠ°Π²ΠΈΡΡΡ ΠΠΎΠΊΡΠΏΠ°ΡΠ΅Π»Ρ. ΠΠΎΠΌΠΈΠΌΠΎ ΠΎΡΠ΄Π΅Π»ΠΊΠΈ ΡΡΠ΅Π½ ΠΏΠΎΠ»ΠΎΡΠ°ΠΌΠΈ ΠΊΠΎΠ½ΡΡΠ°ΡΡΠ½ΠΎΠ³ΠΎ Π°Π½ΡΡΠ°ΡΠΈΡΠΎΠ²ΠΎΠ³ΠΎ ΡΠ΅ΡΠΎΠ³ΠΎ ΡΠ²Π΅ΡΠ° ΡΡΠΈΠ»ΠΈΠ²Π°Π΅Ρ ΡΡΡΠ΅ΠΊΡ ΠΈ ΠΎΡΠ΄Π΅Π»ΠΊΠ° ΠΎΠΊΠΎΠ½Π½ΡΡ ΠΏΡΠΎΠ΅ΠΌΠΎΠ² ΠΌΠ°ΡΡΠΈΠ²ΠΎΠΌ Π΄Π΅ΡΠ΅Π²Π°. Π ΠΊΠ²Π°ΡΡΠΈΡΠ°Ρ ΠΠ Π‘Π°ΠΌΠΎΠ»Π΅Ρ ΠΈΡΠΏΠΎΠ»ΡΠ·ΡΡΡΡΡ ΠΏΠΎΠΏΡΠ»ΡΡΠ½ΡΠ΅ ΠΏΠΎΠ»Ρ ΠΏΠ°Π½ΠΎΡΠ°ΠΌΠ½ΡΠ΅ ΠΎΠΊΠ½Π°. ΠΡ ΠΏΡΠ΅Π΄ΡΡΠΌΠΎΡΡΠ΅Π»ΠΈ, ΡΡΠΎ Π½Π° ΠΏΠΎΠ΄ΠΎΠΊΠΎΠ½Π½ΠΈΠΊΠ°Ρ ΠΌΠΎΠΆΠ½ΠΎ ΡΠΈΠ΄Π΅ΡΡ, ΡΡΠΎ ΠΎΡΠ΅Π½Ρ Π°ΠΊΡΡΠ°Π»ΡΠ½ΠΎ ΠΏΡΠΈ ΠΎΡΠ³Π°Π½ΠΈΠ·Π°ΡΠΈΠΈ "ΠΊΠ²Π°ΡΡΠΈΡΠ½ΠΈΠΊΠΎΠ²" Π² ΡΠ°Π·ΡΠ°Π±ΠΎΡΠ°Π½Π½ΡΡ Π½Π°ΠΌΠΈ ΠΆΠΈΠ»ΠΈΡΠ°Ρ . ΠΠ°ΡΠ°ΡΠ΅ΠΈ Π·Π°ΠΊΡΡΡΡ ΡΠ΅Π΅ΡΠ½ΡΠΌΠΈ ΡΠΊΡΠ°Π½Π°ΠΌΠΈ.
ΠΠ»Ρ Ρ ΡΠ°Π½Π΅Π½ΠΈΡ ΠΏΠΎΠ²ΡΠ΅Π΄Π½Π΅Π²Π½ΠΎΠΉ ΠΎΠ΄Π΅ΠΆΠ΄Ρ Π² ΠΊΠ²Π°ΡΡΠΈΡΠ΅ ΡΠΈΠΏΠ° "Π΅Π²ΡΠΎΠ΄Π²ΡΡΠΊΠ°" Π·Π°ΠΏΡΠΎΠ΅ΠΊΡΠΈΡΠΎΠ²Π°Π½ ΡΠΊΠ°Ρ-ΠΊΡΠΏΠ΅ Π² ΡΠΏΠ°Π»ΡΠ½ΠΎΠΉ. Π¨ΠΊΠ°Ρ-ΠΊΡΠΏΠ΅ ΠΏΠΎΡΡΠ°Π²Π»Π΅Π½ Π½Π°ΠΌΠ΅ΡΠ΅Π½ΠΎ, ΡΠ°ΠΊ ΠΊΠ°ΠΊ ΠΈΠΌ ΡΠ΄ΠΎΠ±Π½Π΅Π΅ ΠΏΠΎΠ»ΡΠ·ΠΎΠ²Π°ΡΡΡΡ ΠΏΡΠΈ ΡΠ°ΠΊΠΈΡ Π³Π°Π±Π°ΡΠΈΡΠ°Ρ ΡΠΏΠ°Π»ΡΠ½ΠΈ. ΠΠΎΠ½ΡΠΎΠ»Ρ ΠΏΠΎΠ΄ ΡΠ΅Π»Π΅Π²ΠΈΠ·ΠΎΡΠΎΠΌ Π² ΡΠΏΠ°Π»ΡΠ½Π΅ ΠΌΠΎΠΆΠ΅Ρ ΡΠ°ΠΊΠΆΠ΅ ΠΈΡΠΏΠΎΠ»ΡΠ·ΠΎΠ²Π°Π½Π° ΠΊΠ°ΠΊ Π±ΡΠ΄ΡΠ°ΡΠ½ΡΠΉ ΡΡΠΎΠ».
ΠΡΠ΄Π΅Π»ΠΊΠ° ΡΡΠ΅Π½ ΠΊΠ²Π°ΡΡΠΈΡΡ - ΠΏΠΎΠΊΡΠ°ΡΠΊΠ°. ΠΠΈΠ·ΡΠ°Π»ΡΠ½ΡΠ΅ Π°ΠΊΡΠ΅Π½ΡΡ Π² ΠΏΠΎΠΌΠ΅ΡΠ΅Π½ΠΈΡΡ ΡΠ°ΡΡΡΠ°Π²Π»Π΅Π½Ρ ΠΏΡΠΈΠΌΠ΅Π½Π΅Π½ΠΈΠ΅ΠΌ ΠΎΠ±ΠΎΠ΅Π² Ρ ΠΏΡΠΈΡΡΠ½ΡΠΌ Π³Π΅ΠΎΠΌΠ΅ΡΡΠΈΡΠ΅ΡΠΊΠΈΠΌ ΠΎΡΠ½Π°ΠΌΠ΅Π½ΡΠΎΠΌ. Π ΠΊΠ²Π°ΡΡΠΈΡΠ΅ Π΅Π²ΡΠΎΠ΄Π²ΡΡΠΊΠ΅ - ΡΡΠΎ ΡΡΠ΅Π½Π° Ρ ΡΠ΅Π»Π΅Π²ΠΈΠ·ΠΎΡΠΎΠΌ ΠΈ ΠΎΡΠ΄Π΅Π»ΠΊΠ° Π΄Π²ΡΡ ΡΡΠ΅Π½ (ΠΎΠ΄Π½Π° Π½Π°ΠΏΡΠΎΡΠΈΠ² Π΄ΡΡΠ³ΠΎΠΉ) Π² ΡΠΏΠ°Π»ΡΠ½Π΅. Π ΡΡΠ°Π»Π΅ΡΠ°Ρ ΠΏΡΠΈΠΌΠ΅Π½Π΅Π½Π° ΠΏΠ»ΠΈΡΠΊΠ° Ρ ΠΈΠΌΠΈΡΠ°ΡΠΈΠ΅ΠΉ Π΄Π΅ΡΠ΅Π²Π°.
Π’Π°ΠΊΠΆΠ΅ ΠΏΠΎ ΡΡΠ΅Π±ΠΎΠ²Π°Π½ΠΈΡ ΠΊΠΎΠ½ΠΊΡΡΡΠ° Π½Π°ΠΌΠΈ Π±ΡΠ»ΠΈ ΠΏΡΠΈΠ΄ΡΠΌΠ°Π½Ρ Π½Π°ΡΡΠΎΠ»ΡΠ½ΡΠ΅ Π»Π°ΠΌΠΏΡ ΠΈ ΡΠΎΡΡΠ΅ΡΡ-Π·ΠΎΠ½ΡΠΈΠΊΠΈ. ΠΠΎΠΌΠΌΠ΅ΡΡΠ΅ΡΠΊΠΎΠ΅ ΠΏΡΠ΅Π΄Π»ΠΎΠΆΠ΅Π½ΠΈΠ΅ Π½Π° ΠΏΡΠΎΠΈΠ·Π²ΠΎΠ΄ΡΡΠ²ΠΎ Π΄Π°Π½Π½ΡΡ ΡΠ²Π΅ΡΠΈΠ»ΡΠ½ΠΈΠΊΠΎΠ² Π±ΡΠ»ΠΎ ΠΏΡΠΈΠ»ΠΎΠΆΠ΅Π½ΠΈΠ΅ΠΌ ΠΊ ΠΊΠΎΠ½ΠΊΡΡΡΠ½ΠΎΠΉ Π·Π°ΡΠ²ΠΊΠ΅.
Π¦Π΅Π½Ρ Π² ΡΠ°Π±Π»ΠΈΡΠ°Ρ Ρ ΠΎΡΠ΄Π΅Π»ΠΎΡΠ½ΡΠΌΠΈ ΠΌΠ°ΡΠ΅ΡΠΈΠ°Π»Π°ΠΌΠΈ ΠΈ Ρ ΠΏΠΎΠ΄Π±ΠΎΡΠΎΠΌ ΠΌΠ΅Π±Π΅Π»ΠΈ, ΡΠ°Π½ΡΠ΅Ρ Π½ΠΈΠΊΠΈ ΠΈ ΠΎΡΠ²Π΅ΡΠ΅Π½ΠΈΡ Π΄Π°Π½Ρ ΡΠΎΠ·Π½ΠΈΡΠ½ΡΠ΅ ΠΈΠ· ΠΎΡΠΊΡΡΡΡΡ ΠΈΡΡΠΎΡΠ½ΠΈΠΊΠΎΠ² (Π·Π° ΠΈΡΠΊΠ»ΡΡΠ΅Π½ΠΈΠ΅ΠΌ Π½Π΅ΡΡΠ°Π½Π΄Π°ΡΡΠ° ΠΈ ΠΊΠΎΡΠΏΡΡΠ½ΠΎΠΉ ΠΌΠ΅Π±Π΅Π»ΠΈ) Π½Π° ΠΌΠΎΠΌΠ΅Π½Ρ ΠΏΠΎΠ΄Π³ΠΎΡΠΎΠ²ΠΊΠΈ Π΄Π°Π½Π½ΠΎΠ³ΠΎ ΠΏΡΠΎΠ΅ΠΊΡΠ°. ΠΡΠΎΡ ΠΏΡΠΎΠ΅ΠΊΡ Ρ Π·Π°ΡΠ°Π½Π΅Π΅ ΠΎΠΏΡΠ΅Π΄Π΅Π»Π΅Π½Π½ΠΎΠΉ ΡΠ΅Π½ΠΎΠΉ ΡΠ΅Π°Π»ΠΈΠ·Π°ΡΠΈΠΈ.
ΠΡΠ΅ ΡΠΌΠ΅ΡΡ ΠΈ Π²Π΅Π΄ΠΎΠΌΠΎΡΡΠΈ ΠΏΠΎΡΡΠΈΡΠ°Π½Ρ Π½Π° ΠΎΡΠ½ΠΎΠ²Π΅ ΠΏΡΠΎΠ΄ΡΠΊΡΠΎΠ² ΠΎΡΠ΅ΡΠ΅ΡΡΠ²Π΅Π½Π½ΡΡ ΠΊΠΎΠΌΠΏΠ°Π½ΠΈΠΉ Π»ΠΈΠ±ΠΎ ΠΊΠΎΠΌΠΏΠ°Π½ΠΈΠΉ Ρ ΡΠΎΡΡΠΈΠΉΡΠΊΠΈΠΌ ΡΡΠ°ΡΡΠΈΠ΅ΠΌ: ΡΠ°Π½ΡΠ΅Ρ Π½ΠΈΠΊΠ° ΠΎΡΠ΅ΡΠ΅ΡΡΠ²Π΅Π½Π½ΠΎΠ³ΠΎ Π±ΡΠ΅Π½Π΄Π° Rosinka, ΠΠΊΠ²Π°Π½Π΅Ρ, Π±ΡΠ΅Π½Π΄Π° Π‘Π°Π½ΡΠ΅Ρ Π½ΠΈΠΊΠΈ ΠΎΠ½Π»Π°ΠΉΠ½, ΡΠ»Π΅ΠΊΡΡΠΎΡΠ΅Ρ Π½ΠΈΡΠ΅ΡΠΊΠΈΠ΅ ΠΈΠ·Π΄Π΅Π»ΠΈΡ Werkel, ΠΎΡΠ²Π΅ΡΠ΅Π½ΠΈΠ΅ Maytoni, ΠΎΠ±ΠΎΠΈ ΠΠ°Π»ΠΈΡΡΠ°, ΠΊΡΠ°ΡΠΊΠ° Π―ΡΠΎΡΠ»Π°Π²ΡΠΊΠΈΠ΅ ΠΊΡΠ°ΡΠΊΠΈ ΠΈ ΡΠΏ.
ΠΡΠ»ΠΈ ΠΡ Ρ ΠΎΡΠΈΡΠ΅ ΡΠ°ΠΊΠΆΠ΅, ΠΡ ΠΌΠΎΠΆΠ΅ΡΠ΅ ΠΊΡΠΏΠΈΡΡ ΡΡΠΎΡ Π³ΠΎΡΠΎΠ²ΡΠΉ Π΄ΠΈΠ·Π°ΠΉΠ½-ΠΏΡΠΎΠ΅ΠΊΡ ΠΈΠ½ΡΠ΅ΡΡΠ΅ΡΠ° ΠΊΠ²Π°ΡΡΠΈΡΡ Π² ΡΠΎΡΡΠ°Π²Π΅: 3Π΄ Π²ΠΈΠ·ΡΠ°Π»ΠΈΠ·Π°ΡΠΈΠΈ, ΠΊΠΎΠΌΠΏΠ»Π΅ΠΊΡ ΡΠ΅ΡΡΠ΅ΠΆΠ΅ΠΉ Π΄Π»Ρ ΡΡΡΠΎΠΈΡΠ΅Π»ΡΡΡΠ²Π°, Π²Π΅Π΄ΠΎΠΌΠΎΡΡΡ ΠΌΠ°ΡΠ΅ΡΠΈΠ°Π»ΠΎΠ² Ρ ΡΡΡΠ»ΠΊΠ°ΠΌΠΈ Π½Π° ΠΏΡΠΎΠΈΠ·Π²ΠΎΠ΄ΠΈΡΠ΅Π»Ρ (Π³Π΄Π΅ ΠΈΡ ΠΊΡΠΏΠΈΡΡ), Π²Π΅Π΄ΠΎΠΌΠΎΡΡΡ ΠΌΠ΅Π±Π΅Π»ΠΈ Ρ ΡΡΡΠ»ΠΊΠ°ΠΌΠΈ Π½Π° ΠΏΡΠΎΠΈΠ·Π²ΠΎΠ΄ΠΈΡΠ΅Π»Ρ. ΠΡΠΎΡΡΠΎ Π·Π°ΠΏΠΎΠ»Π½ΠΈΡΠ΅ ΠΎΠ±ΡΠ°ΡΠ½ΡΡ Π€ΠΠ ΠΠ£ Π‘ΠΠ―ΠΠ, Π½Π°ΠΏΠΈΡΠ°Π² "Ρ ΠΎΡΡ ΠΊΡΠΏΠΈΡΡ Π΄ΠΈΠ·Π°ΠΉΠ½-ΠΏΡΠΎΠ΅ΠΊΡ Π΅Π²ΡΠΎΠ΄Π²ΡΡΠΊΠΈ". Π‘ΡΠΎΠΈΠΌΠΎΡΡΡ ΠΏΡΠΎΠ΅ΠΊΡΠ° - 35 000 ΡΡΠ±Π»Π΅ΠΉ.
ΠΡΠ»ΠΈ ΠΠ°ΠΌ ΠΏΠΎΠ½ΡΠ°Π²ΠΈΠ»ΠΈΡΡ Π΄ΠΈΠ·Π°ΠΉΠ½Π΅ΡΡΠΊΠΈΠ΅ ΡΠ΅ΡΠ΅Π½ΠΈΡ Π΄ΠΈΠ·Π°ΠΉΠ½-ΠΏΡΠΎΠ΅ΠΊΡΠ° Π΅Π²ΡΠΎΠ΄Π²ΡΡΠΊΠΈ Π² ΠΠ Π‘Π°ΠΌΠΎΠ»Π΅Ρ, ΠΌΡ ΠΌΠΎΠΆΠ΅ΠΌ ΡΠ°ΠΊΠΆΠ΅ ΠΈΡ Π°Π΄Π°ΠΏΡΠΈΡΠΎΠ²Π°ΡΡ ΠΏΠΎΠ΄ ΠΠ°Ρ Π΄ΠΈΠ·Π°ΠΉΠ½-ΠΏΡΠΎΠ΅ΠΊΡ ΠΈΠ½ΡΠ΅ΡΡΠ΅ΡΠ°. ΠΡΠΎΡΡΠΎ Π·Π°ΠΏΠΎΠ»Π½ΠΈΡΠ΅ ΠΎΠ±ΡΠ°ΡΠ½ΡΡ Π€ΠΠ ΠΠ£ Π‘ΠΠ―ΠΠ.
ΠΡΡ
ΠΈΡΠ΅ΠΊΡΠΎΡ: ΠΡΠΎΡΠΊΡΡΠΈΠ½Π° ΠΠΊΠ°ΡΠ΅ΡΠΈΠ½Π°
ΠΠΈΠ·Π°ΠΉΠ½Π΅Ρ: Π‘ΡΠ°ΡΠΎΠ²Π΅ΡΠΎΠ² Π ΠΎΠΌΠ°Π½

















