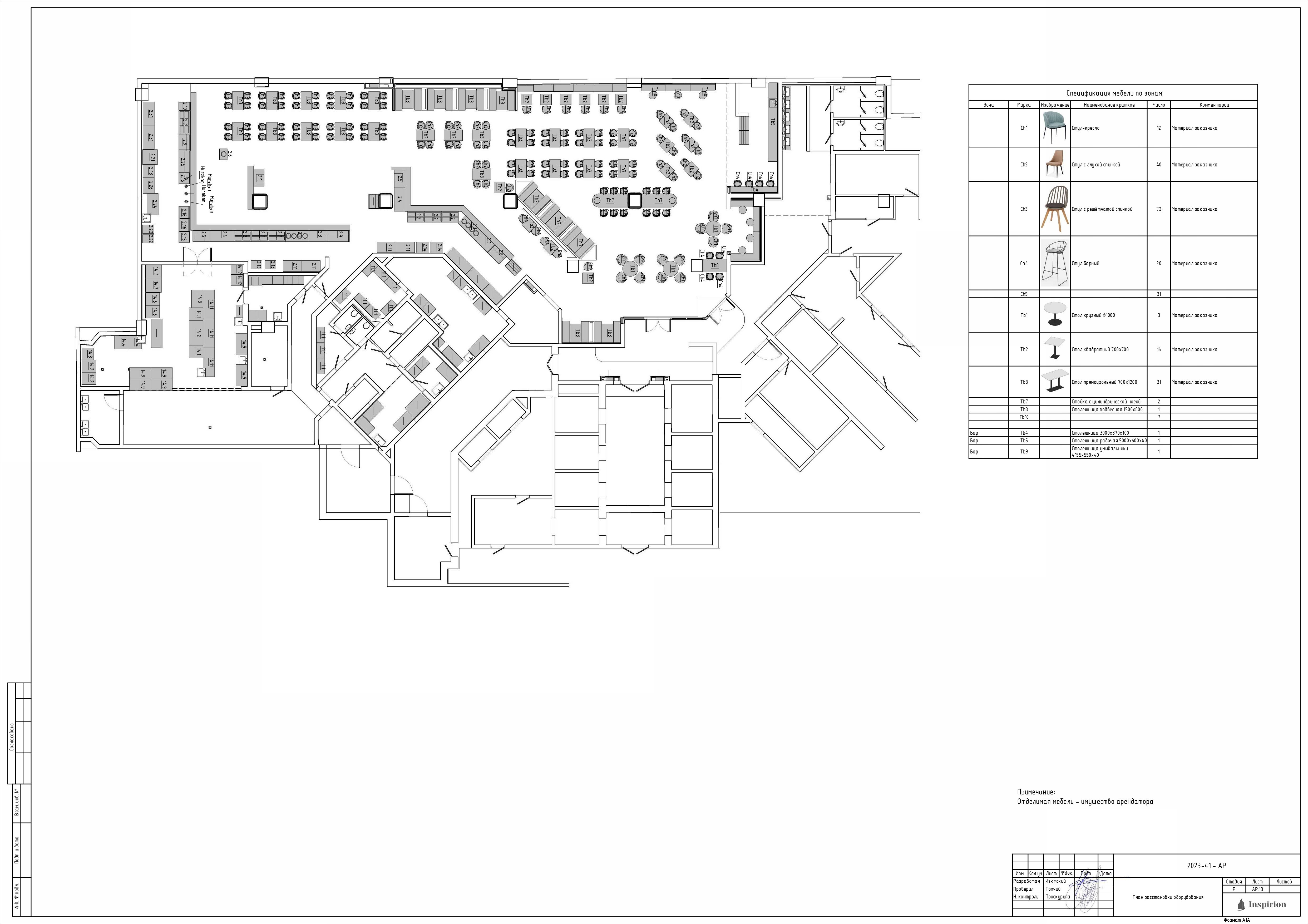
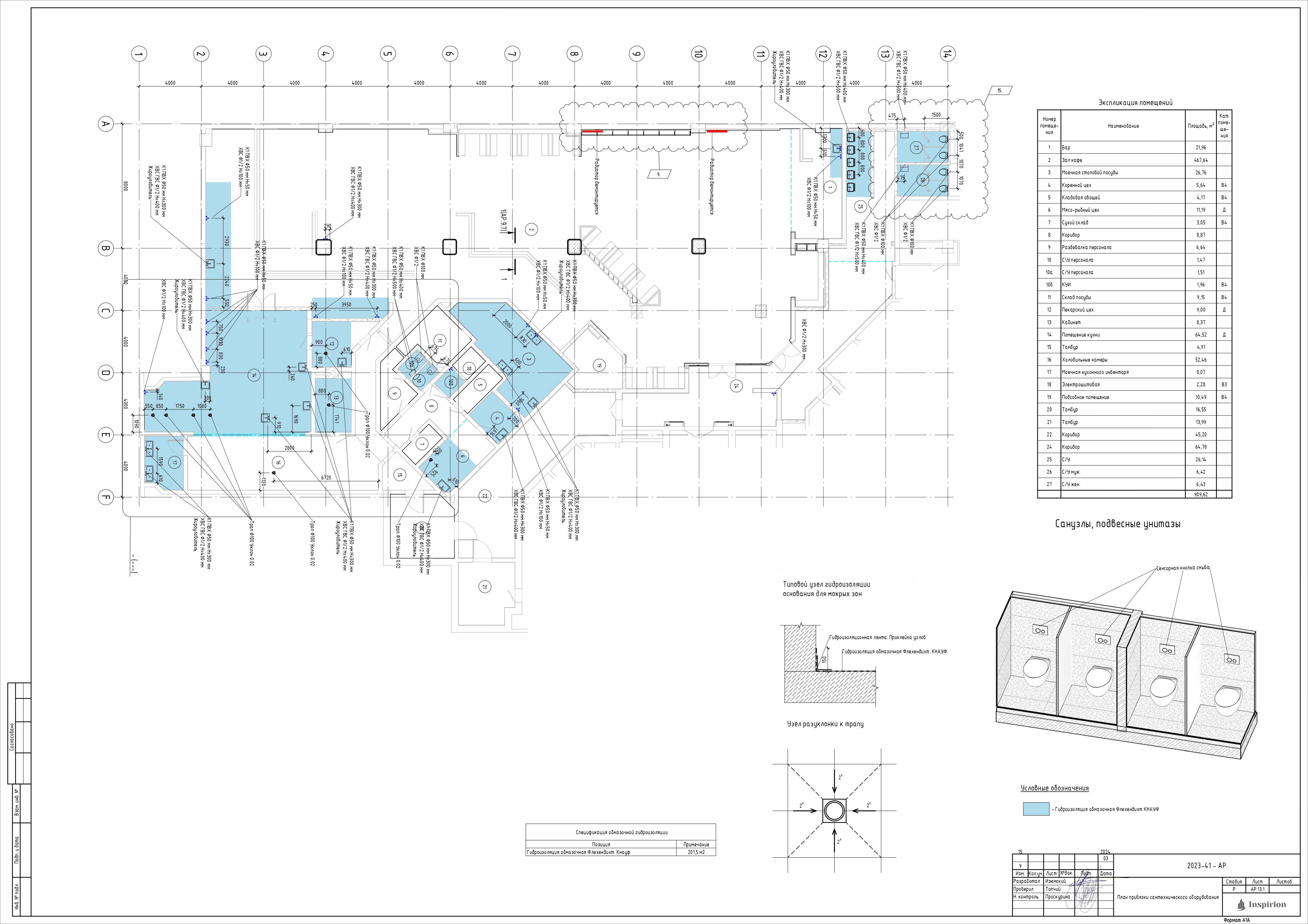
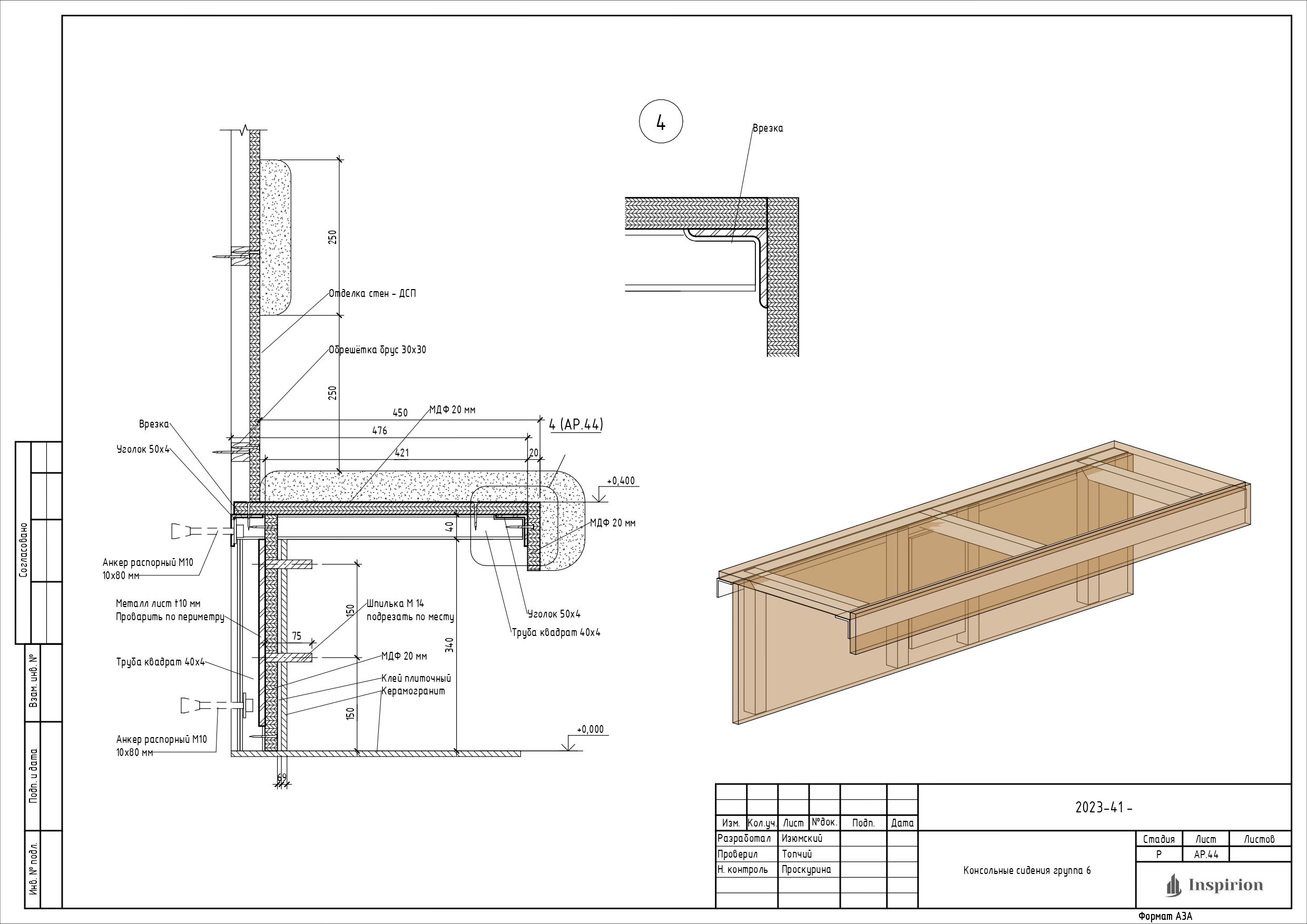
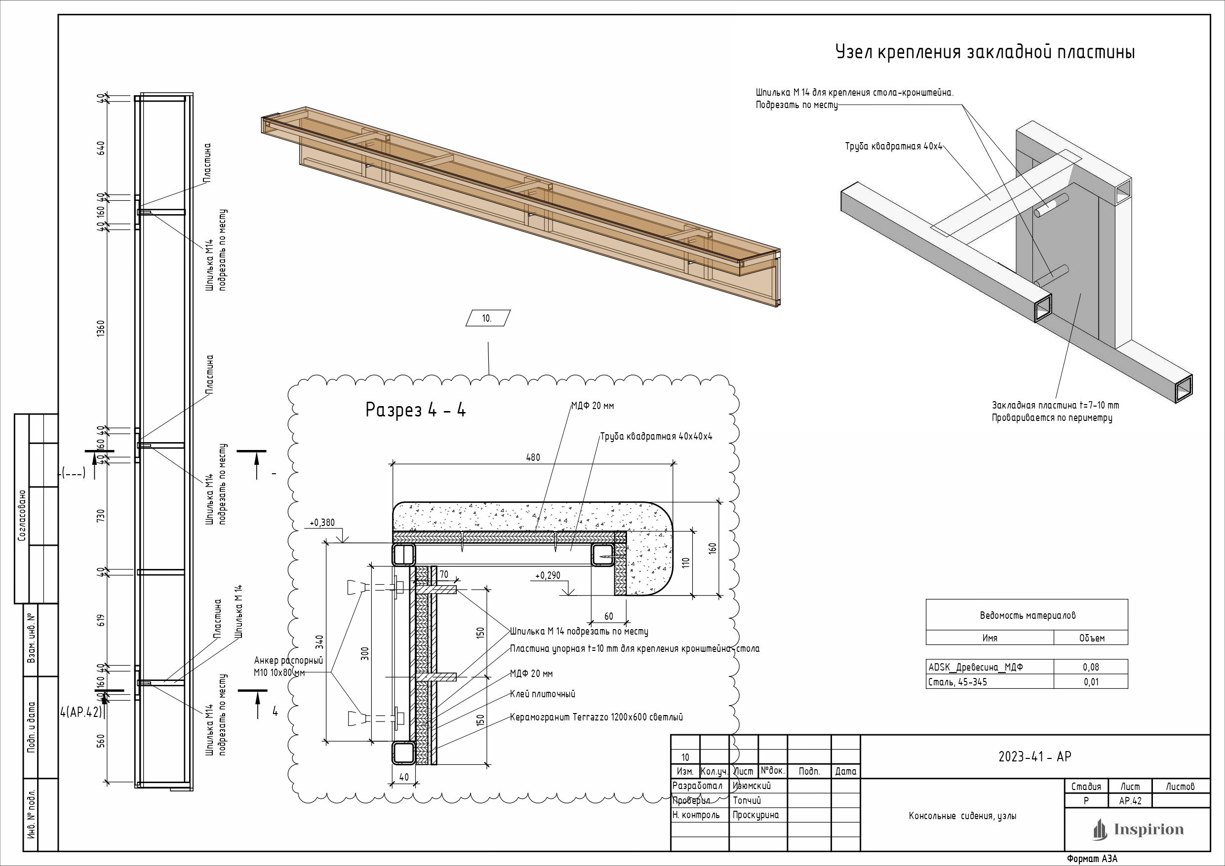
Задача была разработать АР для поэтапного ремонта в столовой, которая должна не прекращать работать. Был разработан АР временной схемы размещения кухни столовой и АР постоянной схемы. Здесь выложен АР постоянной схемы размещения вместе с зоной посадки. Работа в Revit. Архитектурные решения и инженерные решения адаптированы друг к другу. Также были разработаны проекты ОВ, ВК, ЭОМ и СКС под штампом Подрядчика.
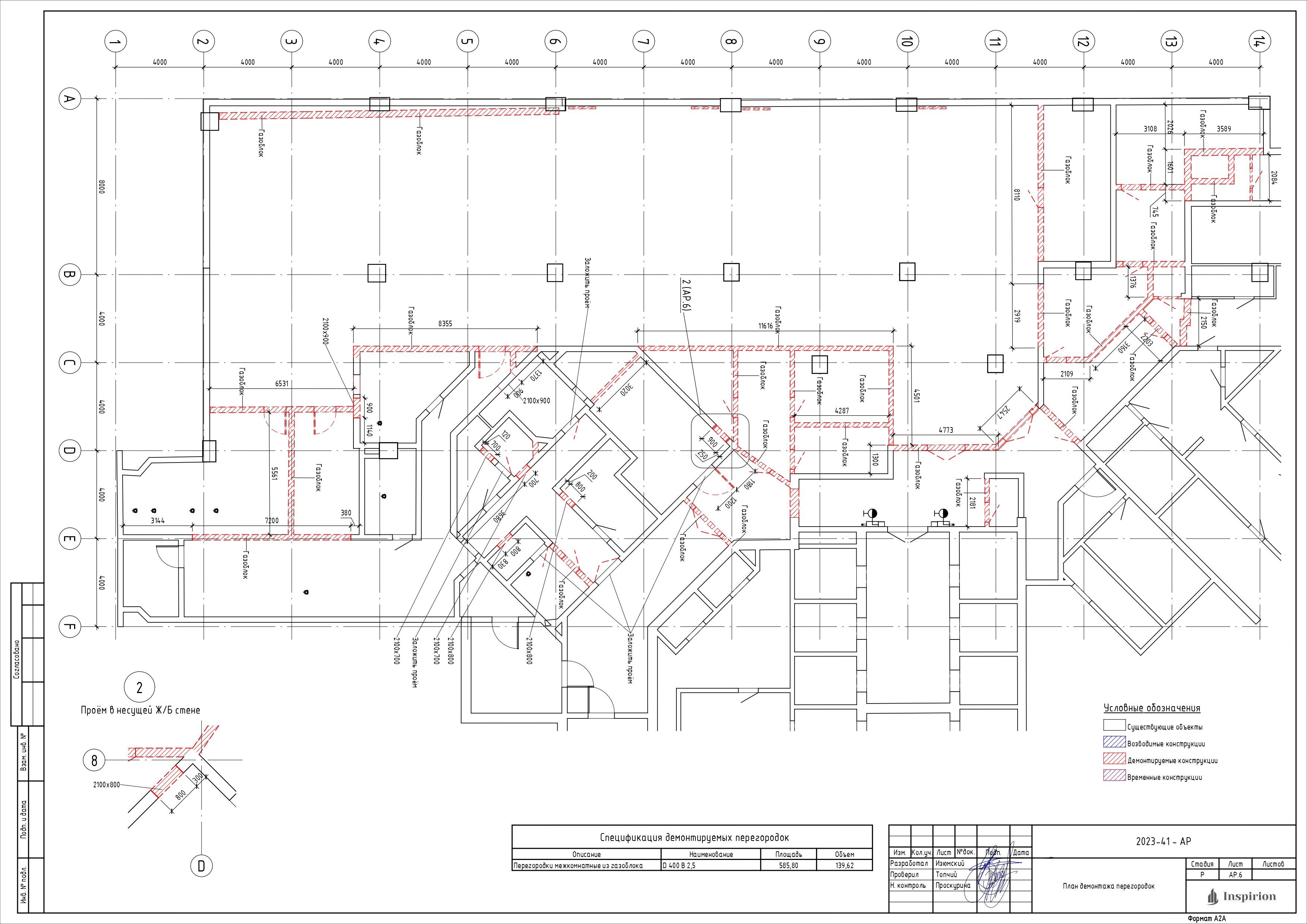
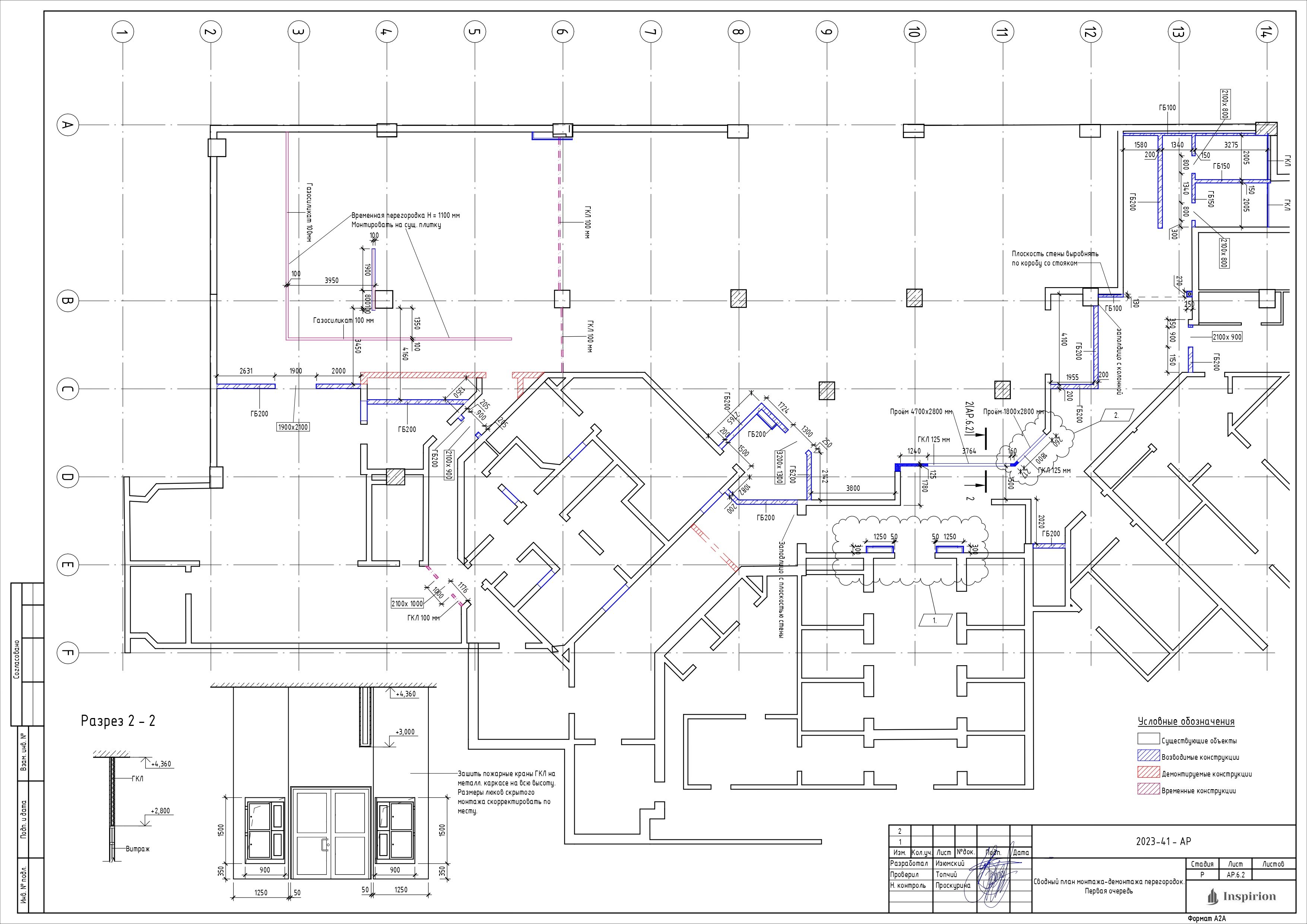
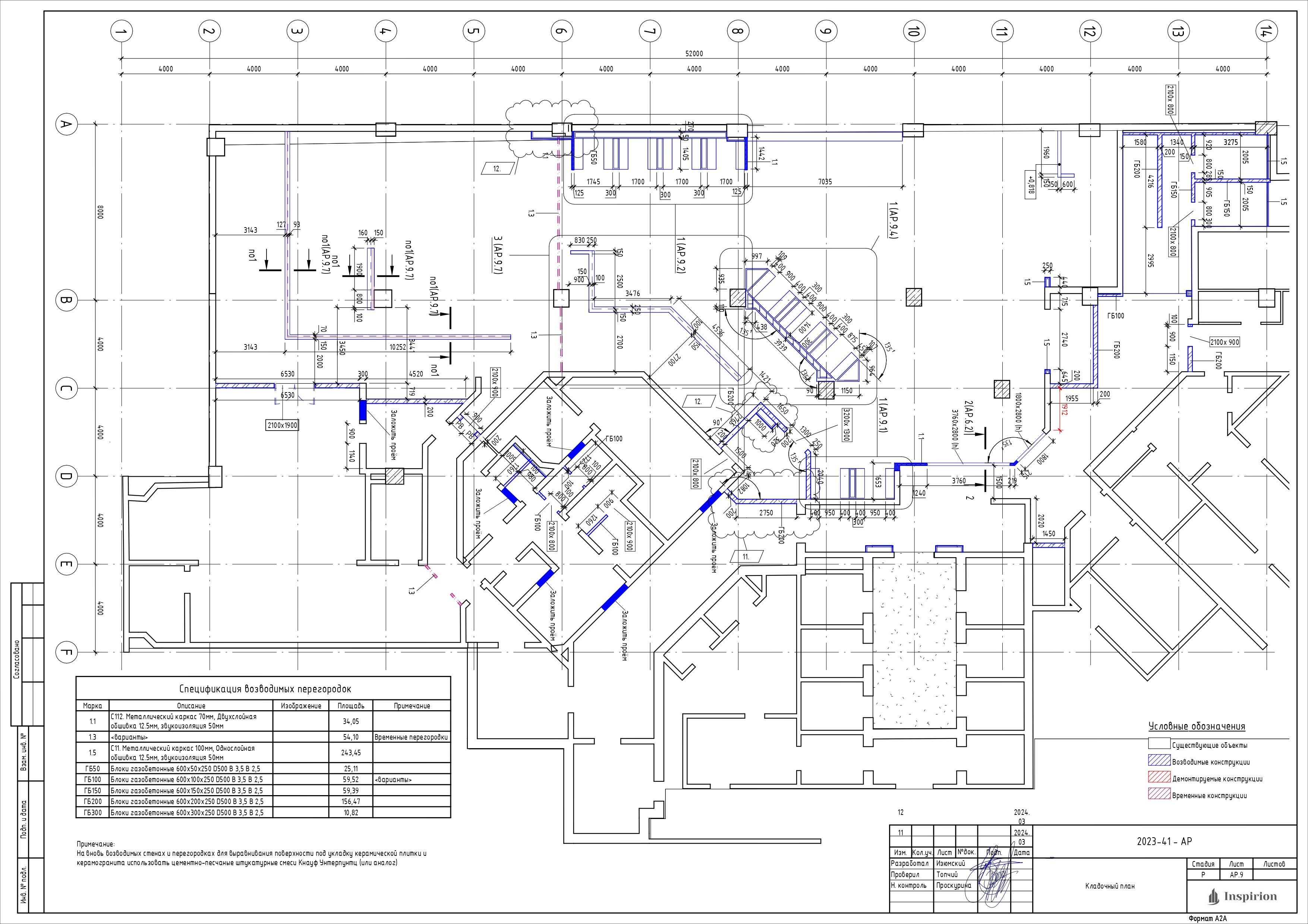
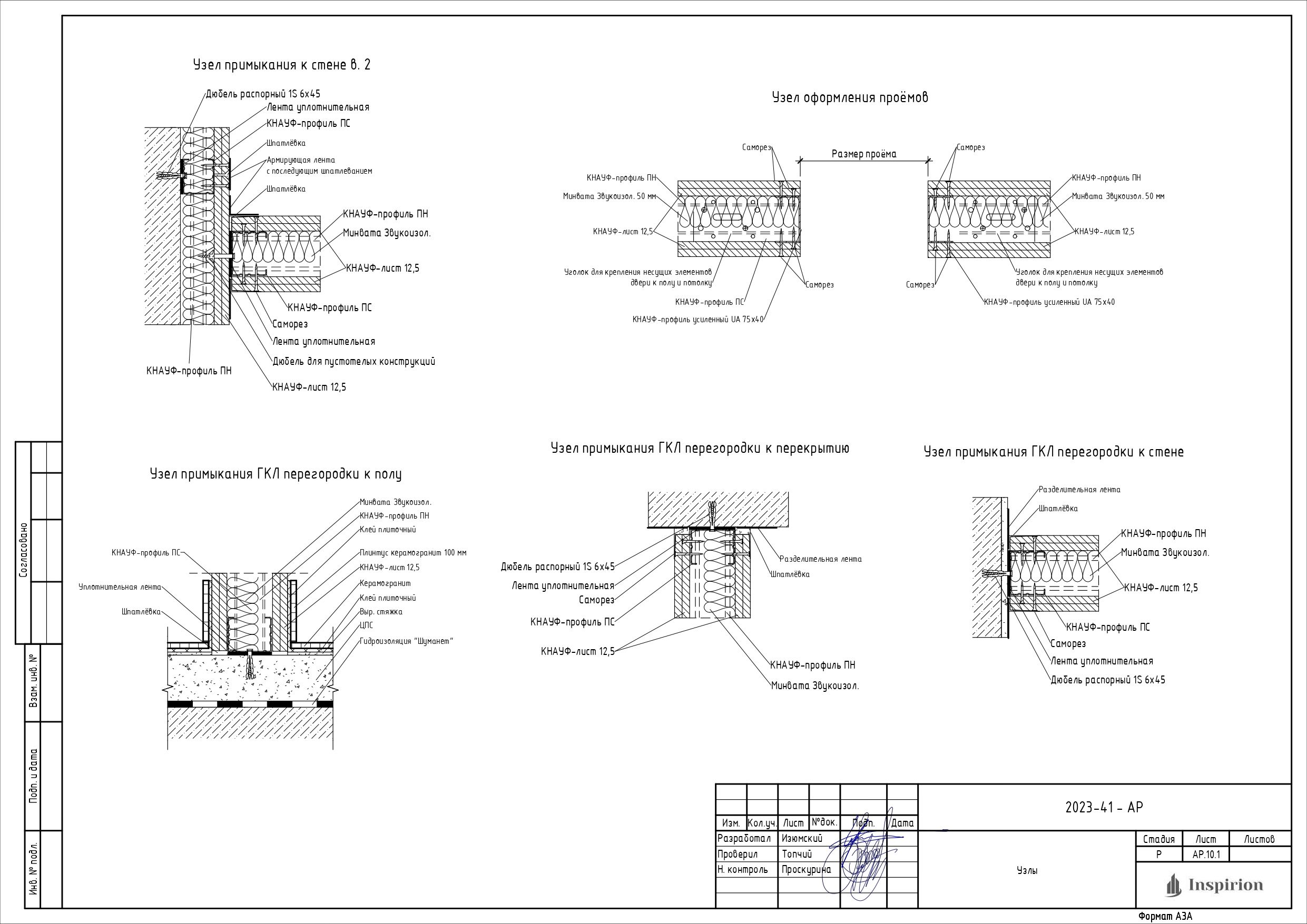
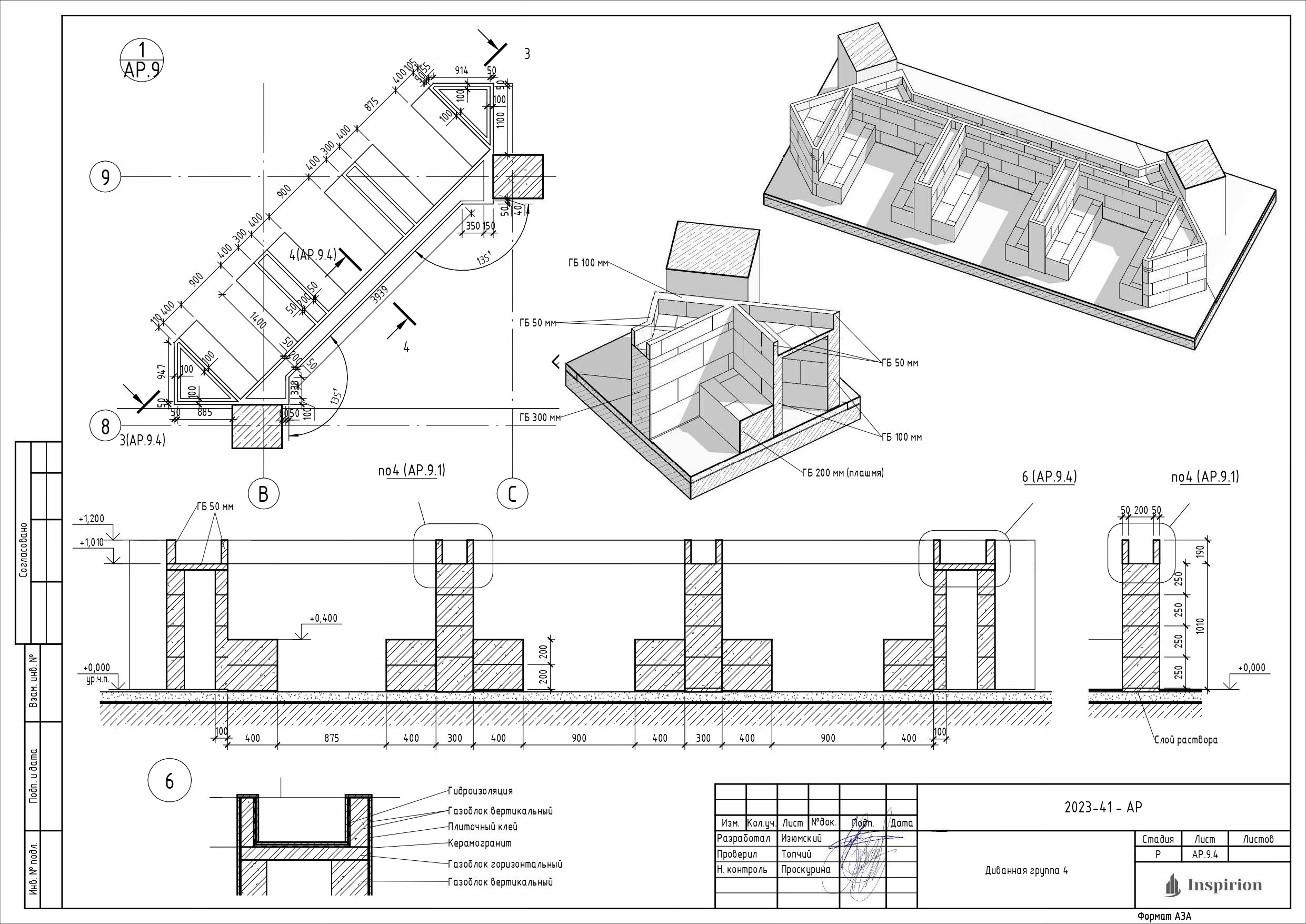
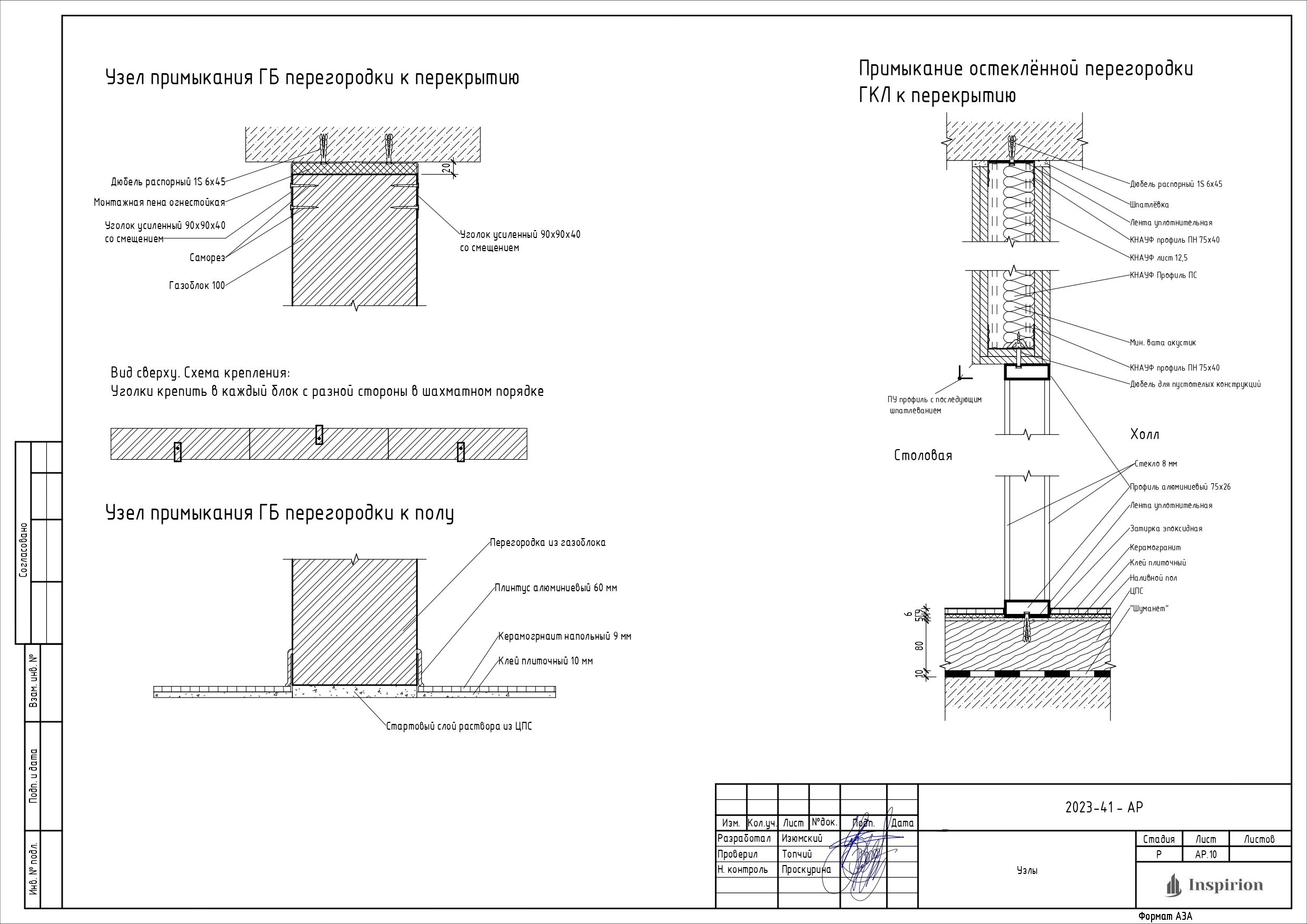
Проектом предусмотрено:-Устройство внутренних перегородок из газобетонных блоков 600х200х250 (h) D 500 B 2,5
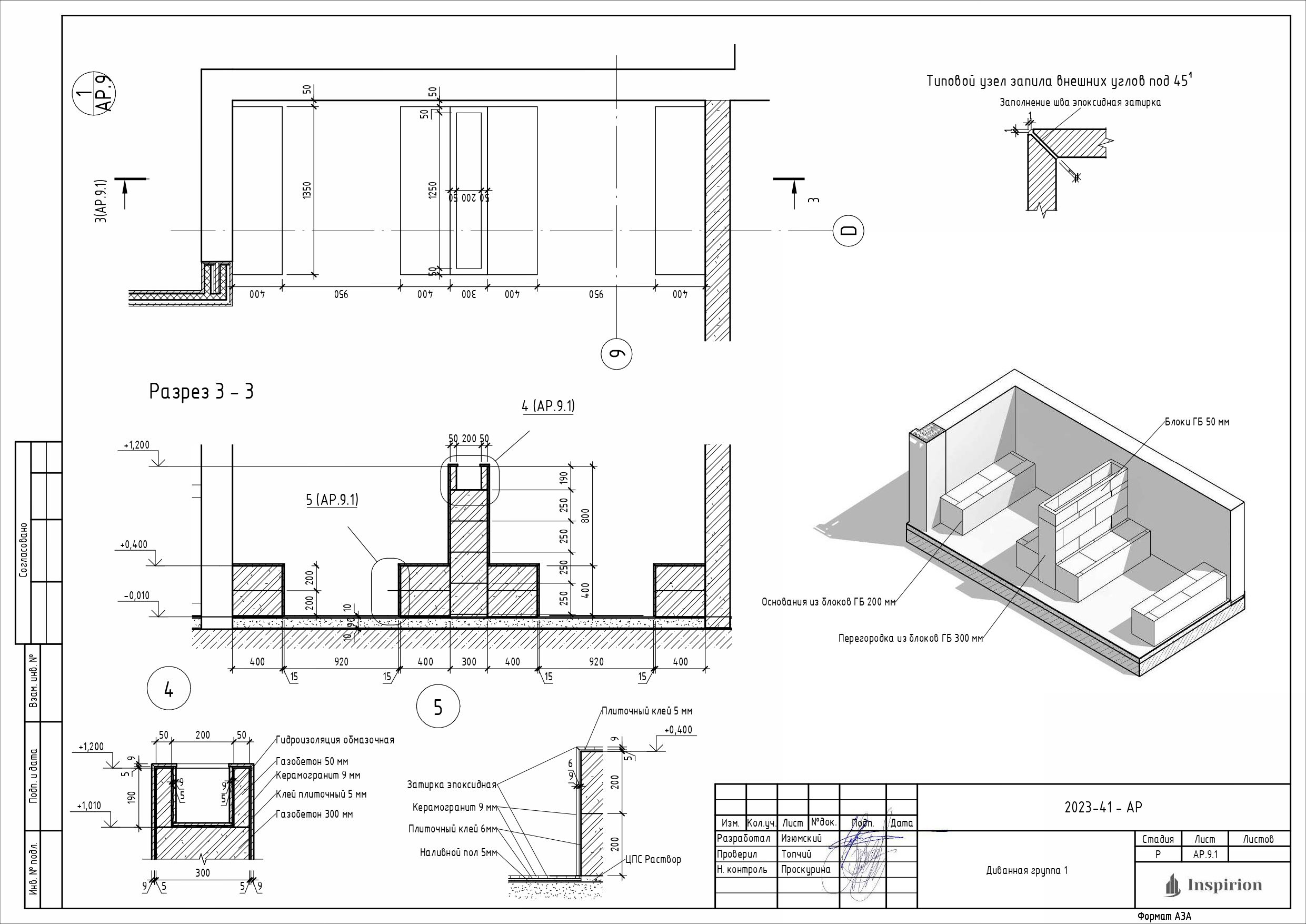
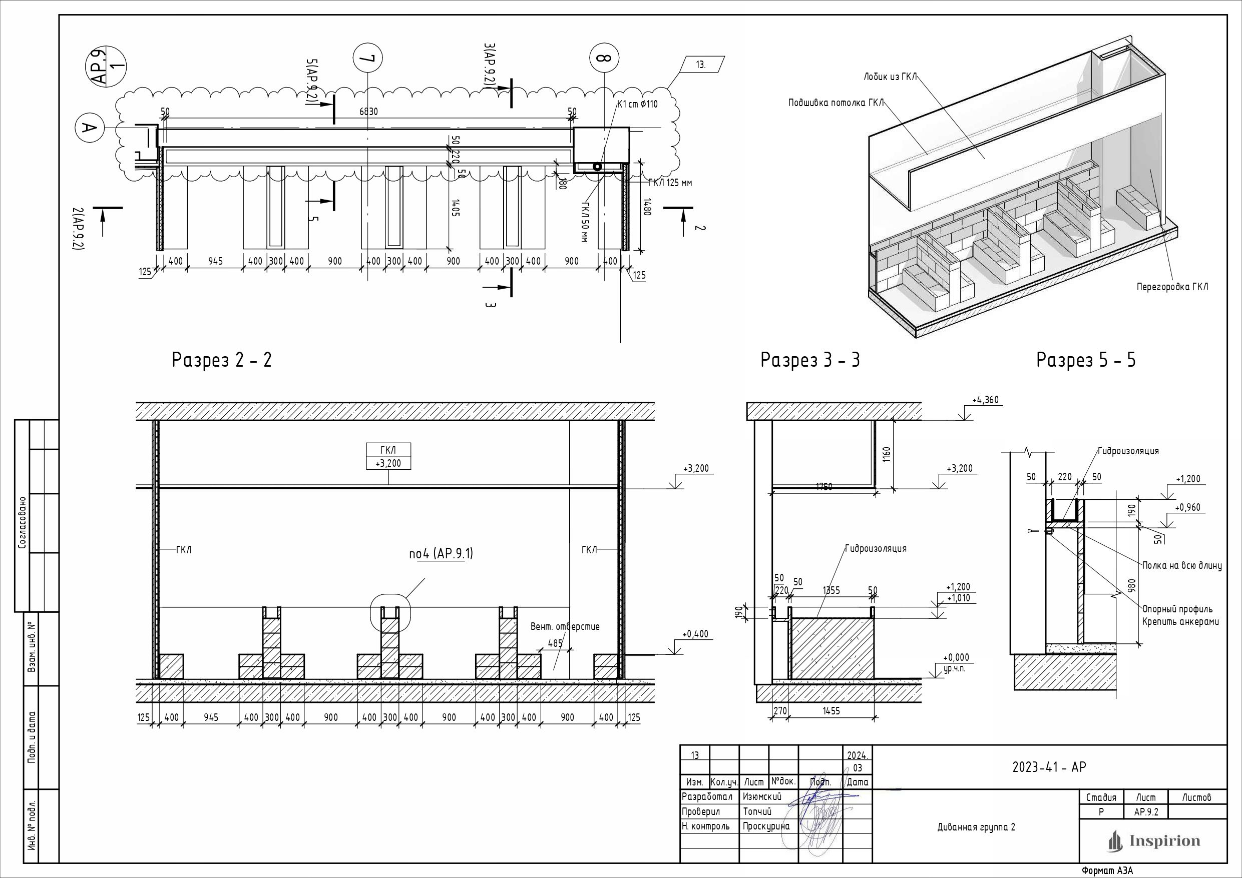
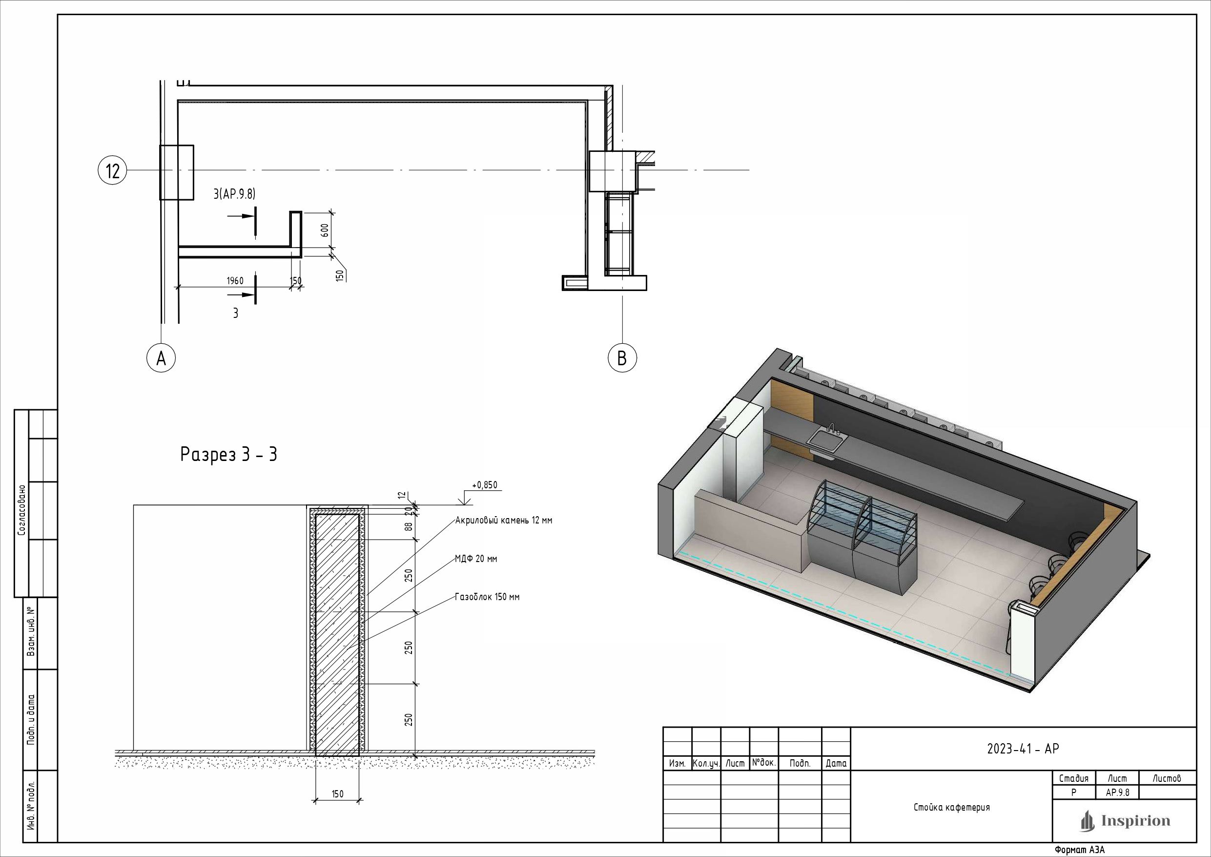
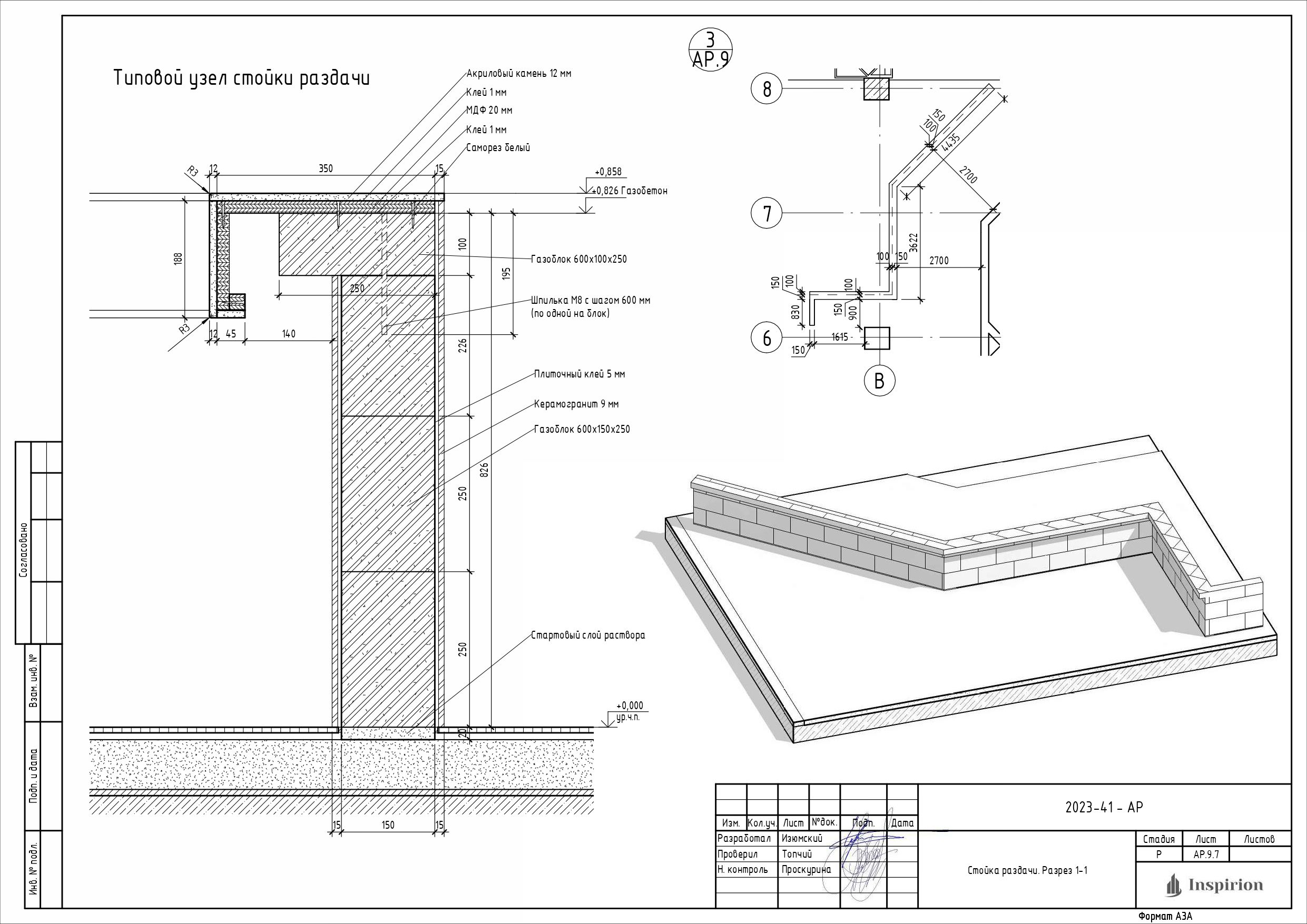
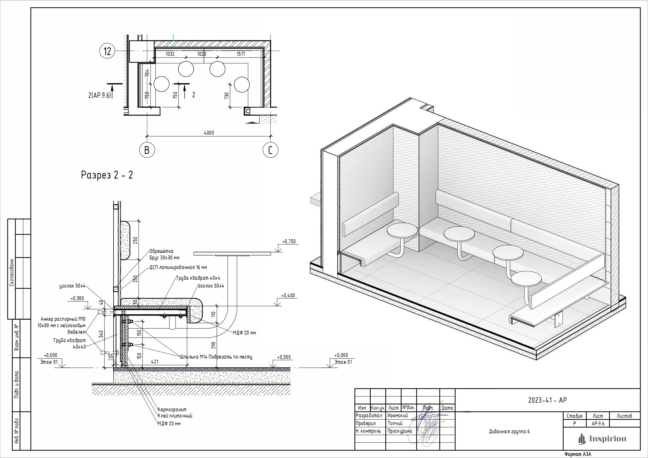
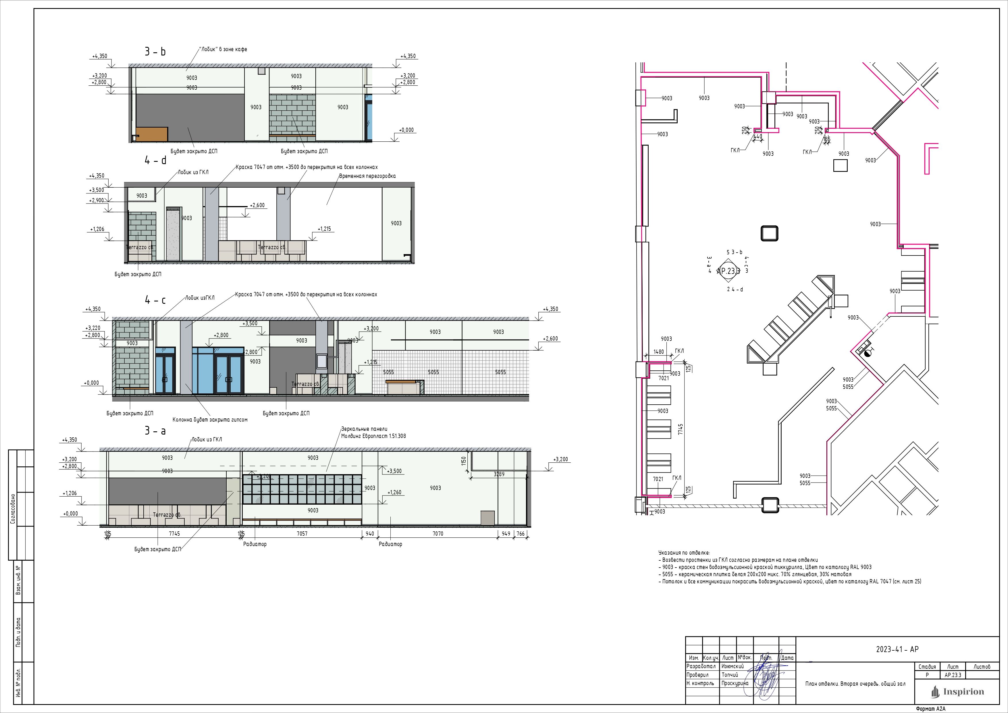
Устройство мягких диванных зон из газоблоков толщин: 50, 100, 200, 300 мм- Устройство простенков и потолочных конструкций из ГКЛ-конструкций на металличском профиле КНАУФ - Устройство внутренних остеклённых перегородок с двумя стёклами на алюминиевом каркасе- Частичная замена цементно-песчаной стяжки-Отделочные работы по помещениям
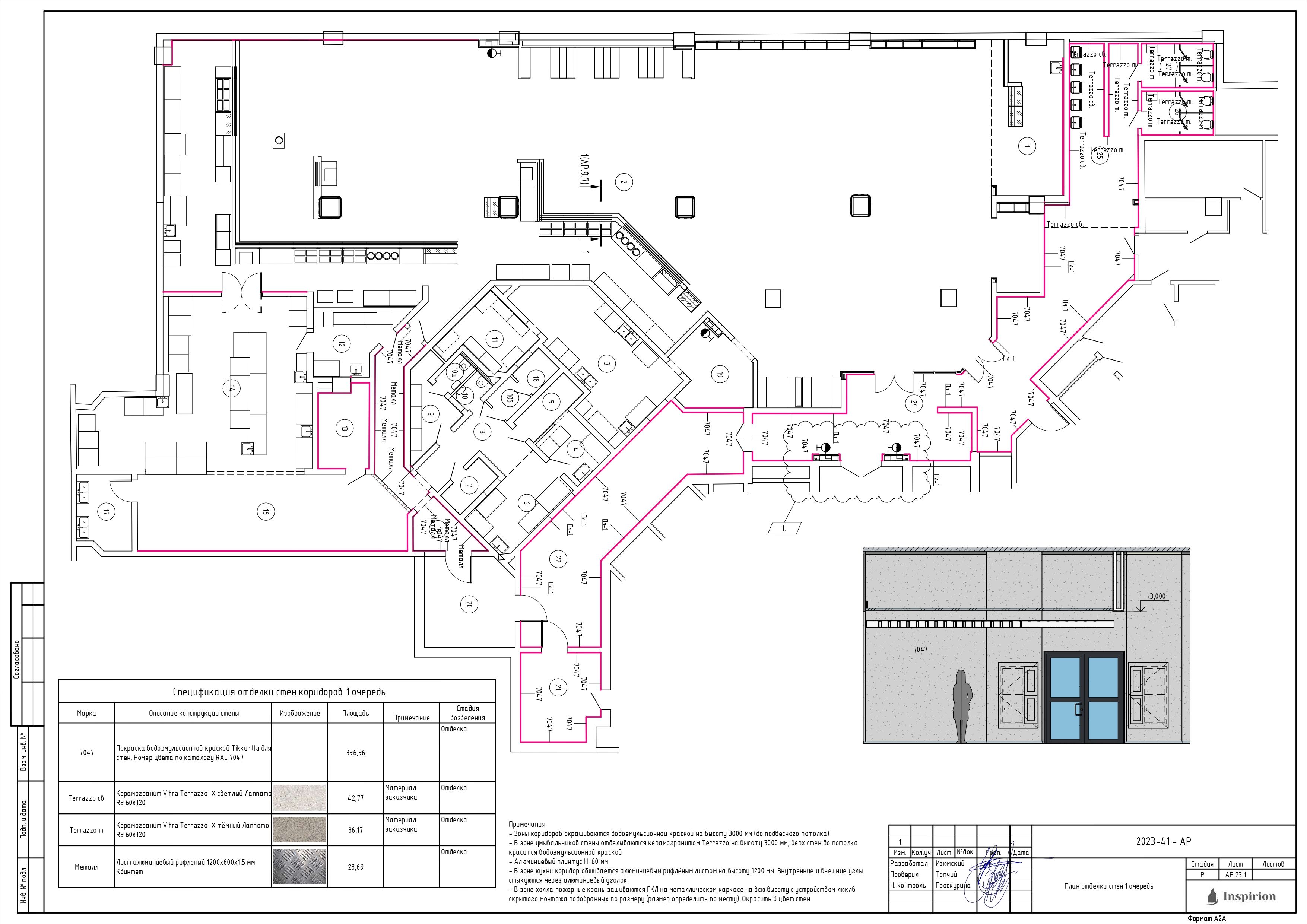
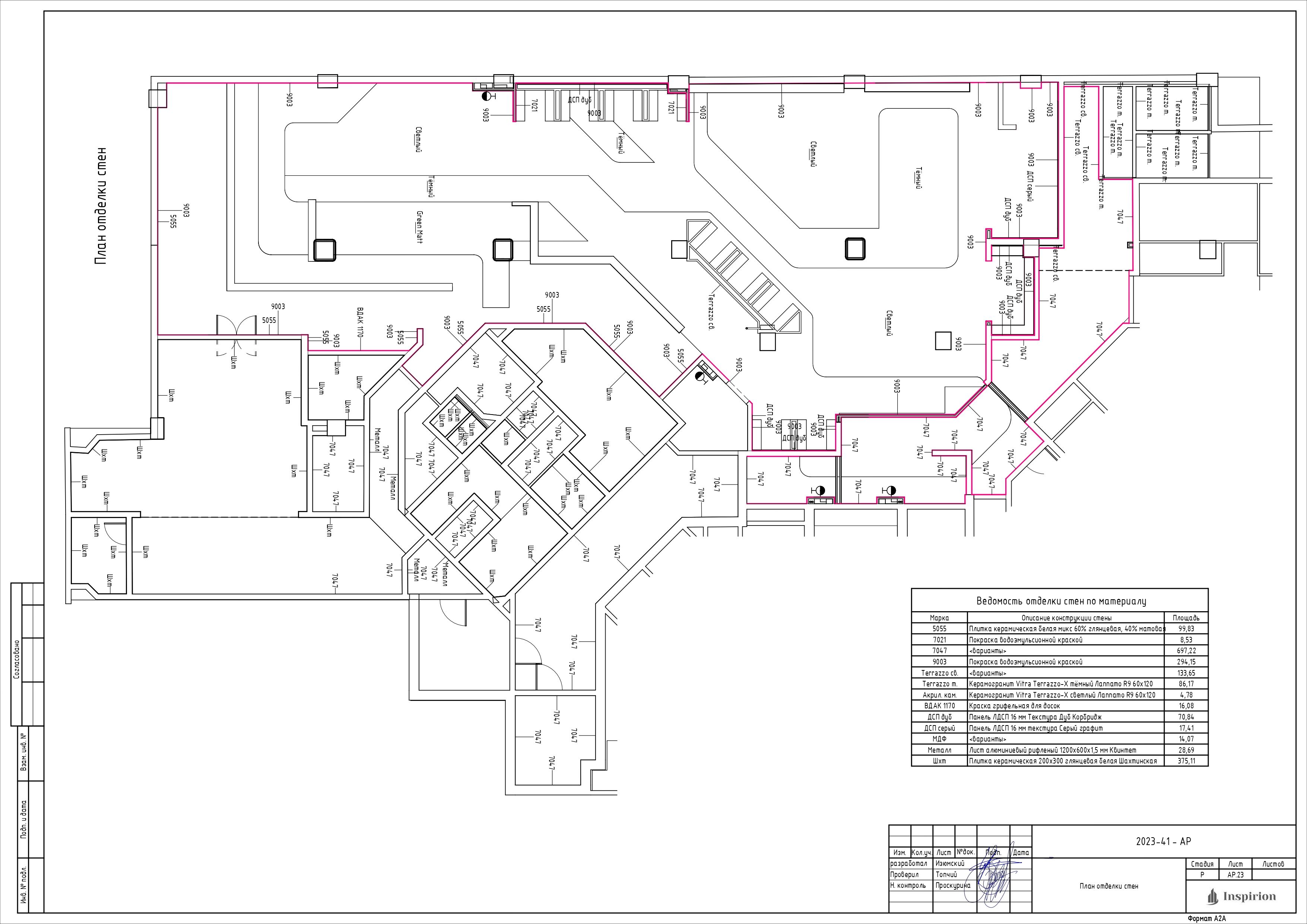
Для отделки стен, потолков предусмотреть материалы групп не ниже чем класс КМ2 (Г1, В2, Д2, Т2, РП1), и материалы для покрытия пола не ниже чем класс КМ3 (Г2, В2, Д3, Т2, РП2). Категория качества отделки стен - улучшенная: для укладки плитки и листовых материалов - К1, для покраски - К3.
Перед выполнением работ предусмотреть меры по технике безопасности согласно "Правил по охране труда при строительстве, реконструкции иремонте", ГОСТР 12.0.001-2013. При производстве всех видов строительно-монтажных работ необходимо соблюдать требования части 3 по организации, производству, приемкеработ (СП48.13330.2019, РД 11-02-2006).
Используемые при строительстве материалы должны иметь сертификаты соответствия, вт.ч. в области пожарной безопасности. При производстве сварочных работ необходимо соблюдать требования "Правил по охране труда при строительстве, реконструкции и ремонте"
Стальные конструкции запроектированы в соответствии с указаниями СП 70.13330.2012. Материалы стальных
конструкций должны удовлетворять требования ГОСТ 27772-88.
Крепление строительных конструкций (в т.ч. каркаса подвесного потолка) к инженерным коммуникациям, несущим
элементам здания (колонны, балки) запрещается.
Порядок приемки скрытых работ по проекту ведется в соответствии с СП 48.13330.2019, СП 70.13330.2012, СП 71.13330.2017. По завершению строительных работ и их приемкой Заказчиком Подрядчик подготавливает Исполнительную документацию, куда в обязательном порядке включает акты освидетельствования скрытых работ проекта, а именно: Устройство стяжки пола, устройство гидроизоляции пола, акт освидетельствования строительных конструкций на обеспечение требуемого предела огнестойкости и требуемого класса пожарной опасности, возведение перегородок из газоблока.
Акт освидетельствования заполнения проемов в противопожарных преградах, акт освидетельствования скрытых работ на штукатурку, шпаклёвку, закладные гофры эом и скс, трубы в штробах водоснабжения и канализации, грунтовка полов и стен , пропитка огнезащитой деревянных закладных под двери и прочее, акты индивидуальных испытаний эом, скс, ов, акт пролива канализации, акт опрессовки водоснабжения. Усиление дверного проема.
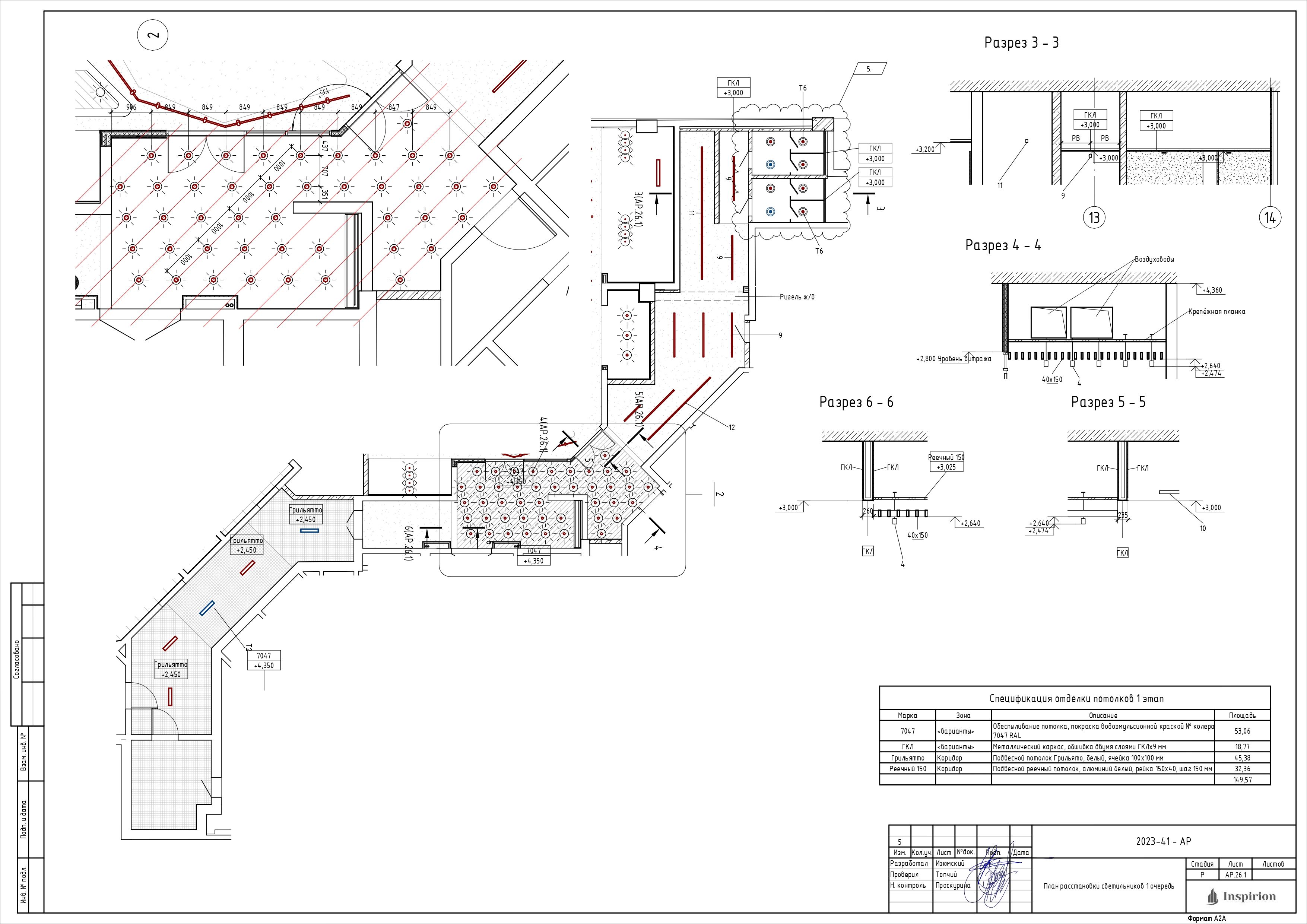
Освещение искусственное с учетом норм освещенности, согласно СП 52.13330.2016 "Естественное и искусственное освещение". Искусственное освещение в общем зале не менее 300 лк, в помещениях отдыха - 200 лк, в серверной - 300 лк.
Все светильники оборудованы "опаловыми рассеивателями" или защитными плафонами с металлической сеткой для предохранения источников света от загрязнения, механического повреждения и попадания стекла на продукты. Тип светильников - в соответствии со средой и назначением помещений (светодиодные лампы).
Для удаления избытков тепла, влаги, вредных веществ с целью обеспечения отопительных метеорологических условий и чистоты воздуха в помещениях, обслуживаемой и рабочей зоне предусматривается устройство систем вентиляции с механическим побуждением.
Для поддержания нормируемой температуры внутреннего воздуха в помещениях предусмотрена существующая система отопления. Для создания комфортных условий в помещениях предусматривается охлаждение приточного воздуха.
Дополнительно предусмотрено кондиционирование в общем зале и кабинетах.
Противопожарные двери оборудуются приспособлениями для самозакрывания и уплотнением в притворах. Над дверями эвакуационных выходов предусмотрена установка светоуказателей "ВЫХОД” с отдельным подключением питания.
При прокладке кабелей и трубопроводов через ограждающие конструкции (перекрытия, перегородки) с нормируемыми пределами огнестойкости и пределами распространения огня заполнение зазоров между проводами, кабелями или трубой предусмотрены из легко удаляемой массы негорючего материала.
В здании не применяется облицовка из горючих материалов и оклейка горючими пленочными материалами стен и потолков на путях эвакуации, а также устройство из горючих материалов полов в офисных помещениях и коридорах.
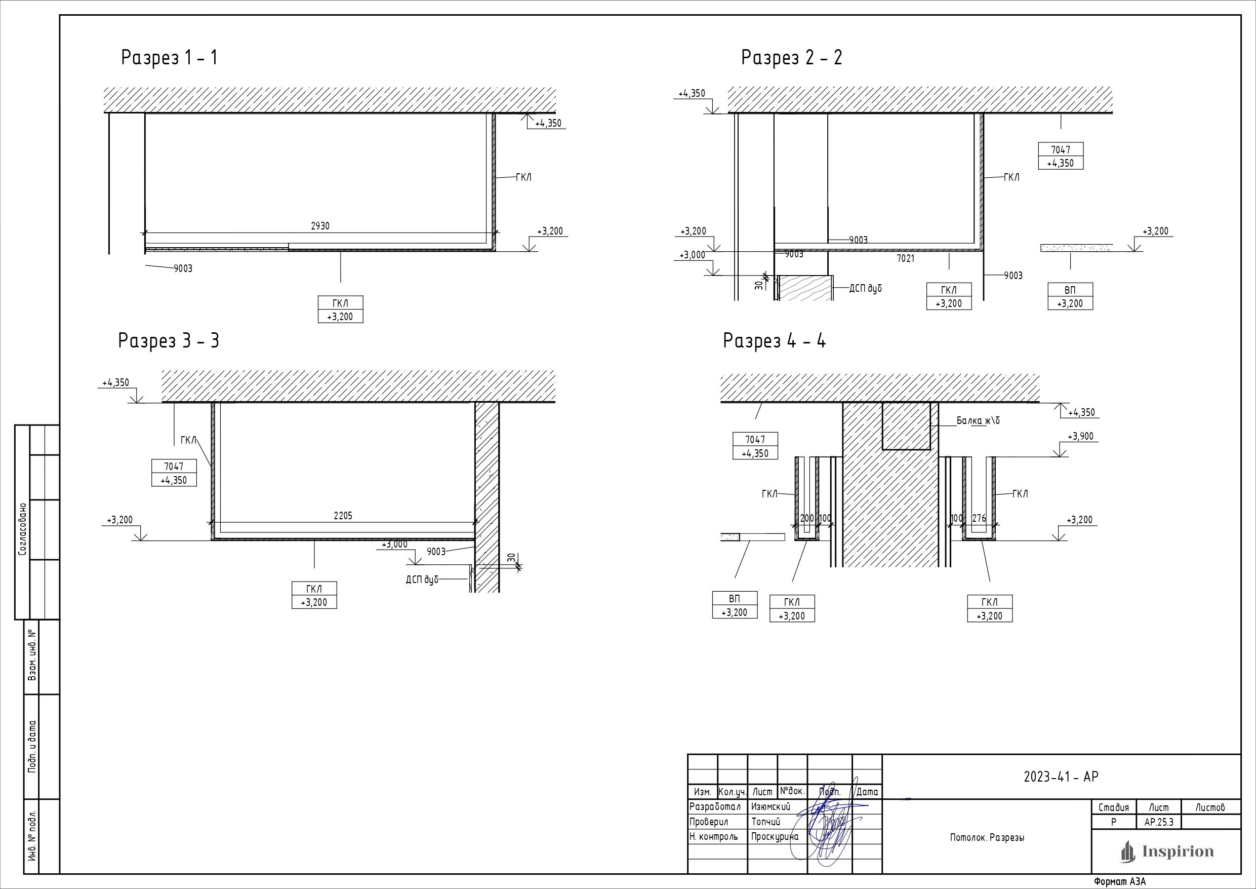
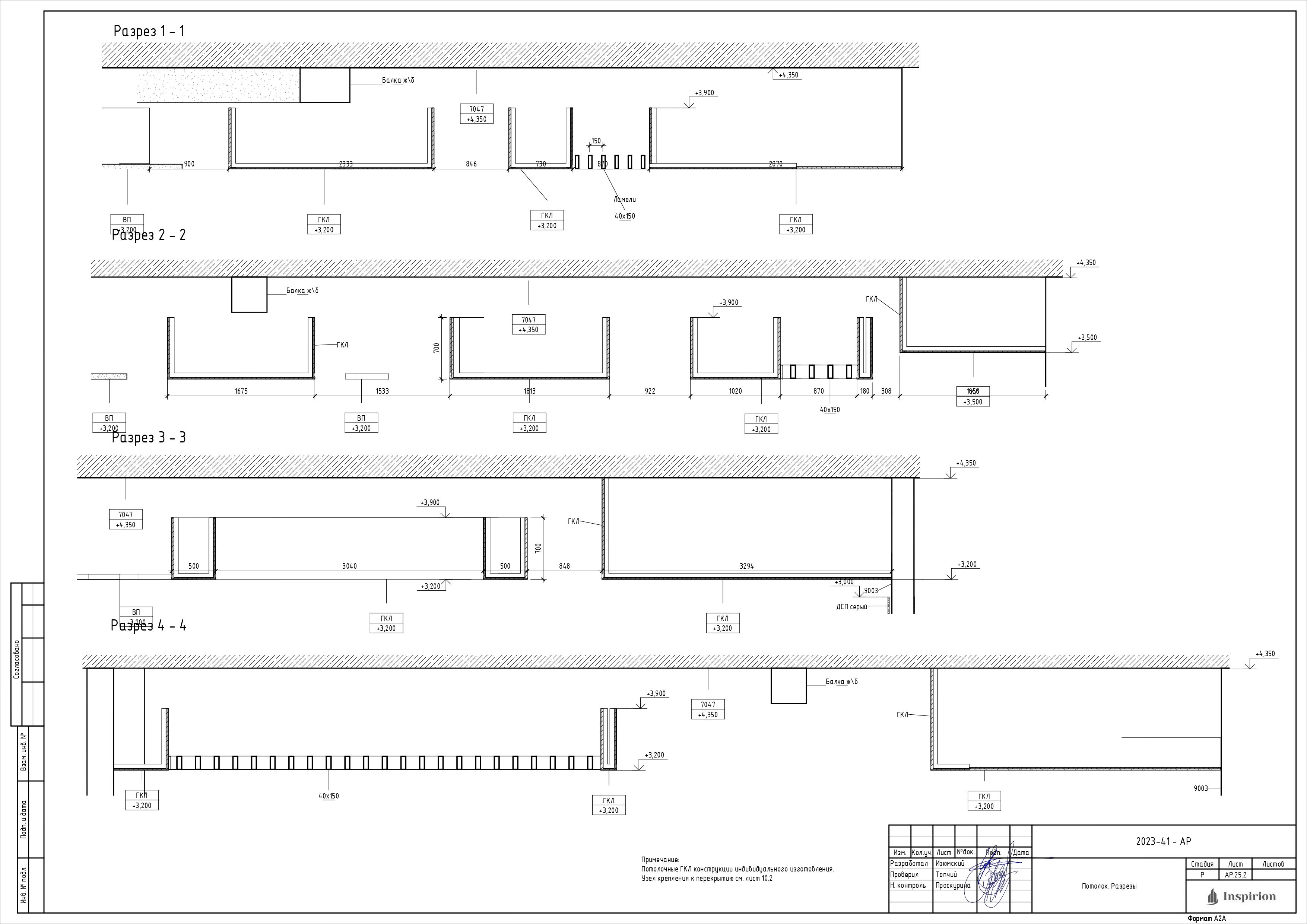
Каркасы и заполнение подвесных потолков на путях эвакуации выполняются из негорючих материалов или подвесных потолков на путях эвакуации выполняются из негорючих материалов или материалов группы горючести Г1, а отделка стен и потолков помещений предусматривается из трудно горючих или негорючих материалов. В отделке помещений и путей эвакуации используются отделочные материалы, имеющие сертификаты пожарной безопасности или протоколы испытаний на горючесть, воспламеняемость, токсичность и дымообразующую способность зарегистрированных в России лабораторий (испытательных центров).
При эксплуатации эвакуационных путей и выходов должно быть обеспечено соблюдение проектных решений и требований нормативных документов по пожарной безопасности (вт.ч. по освещенности, количеству, размерам и объемно-планировочным решениям эвакуационных путей и выходов, а также по наличию на путях эвакуации знаков пожарной безопасности).
Двери на путях эвакуации должны свободно открываться по направлению выхода из здания, за исключением дверей, направление открывания, которых не нормируется требованиями нормативных документов по пожарной безопасности.
Запоры на дверях запасных эвакуационных выходов должны обеспечивать людям, находящимся внутри помещения, возможность свободного открывания запоров изнутри, без ключа.
При эксплуатации эвакуационных путей и выходов запрещается: загромождать эвакуационные пути и выходы (в т .ч. проходы, коридоры, тамбуры, двери, эвакуационные люки ит.д.) различными материалами, изделиями, оборудованием, мебелью, отходами, мусором, товаром и др. предметами; фиксировать самозакрывающиеся двери в открытом положении (если для этих целей не используются автоматические устройства, срабатывающие при пожаре), а также снимать их.
Архитектор Изюмский М.
ГАП Проскурина Е.






































































